Продажа офисного помещения в Витебске (127.4м2)
163 479 р.
Продажа
Следить за ценой
Офис
Тип
127.40 м²
Площадь
15.04.2026ID 4003208
Описание
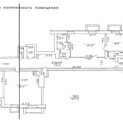
Офисный блок 127,4 м2 в г. Витебск, пр-т. Черняховского, 33.
Находится на цокольном этаже жилого дома, наличие естественного освещения, всех коммуникаций, санузел, отдельный вход.
Выделены кабинеты, помещения кладовой и серверной.
Возможность парковки вокруг здания, удобные подъездные пути, остановки общественного транспорта в непосредственной близости.
Покупатель услуги агентства не оплачивает.
Звоните, ответим на все Ваши вопросы!
Параметры объекта
- Тип объекта
Офис
- Площадь общая
127.40 м²
- Этажность
10
- Год постройки
2007
- Раздельных помещений
3 - 4
- Материал стен
Панельный
- Ремонт
Нормальный
- Отопление
Есть
- Электроснабжение
Есть
- Естественное освещение
Есть
- Вода
Есть
- Санузел
Есть
- Количество телефонов
Больше пяти
- Парковка
Есть
- Принадлежность объекта
Частная
- НДС
НДС нет (0%)
- Расположение
В жилом доме
- Юридический адрес
Да
- Номер договора
38/1 от 07.12.2025
Оснащение
Компьютерная сеть
Отдельный вход
Примечание
Офисный блок 127,4 м2 в г. Витебск, пр-т. Черняховского, 33.
Местоположение
- Область
- Район
Витебский район
- Населенный пункт
- Улица
- Номер дома
33
- Район города
- Координаты
55.1695, 30.197
