Купить дачу, с/т Витьба, 53 (Витебский р-н, Витебская область)
28 985 р.
Чистая продажа
Следить за ценой
Дача
Тип
10 сот
Участок
66.3 м²
Общая
25.07.2025ID 3820619
Параметры объекта
- Тип объекта
Дача
- Площадь участка
10 соток
- Площадь общая
66.3 м²
- Уровней в доме
2
- Год постройки
1995
- Процент готовности
100
- Ремонт
Отделка деревом
- Статус земли
Частная собственность
- Возможен торг
Да
- Условия продажи
Чистая продажа
Продавец
Иван
Контактное лицо
Примечание
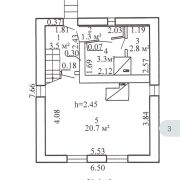
Продаётся 2-ух этажный дом-дача в 8км.от моста Лучёса, стены блочно -панельные плиты, кирпич, балкон 4.5кв.м. на втором этаже. Первый этаж 31.6 кв.м., комната 20.7кв.м., на первом этаже слева баня 7.4кв.м. Второй этаж 2 комнаты: 17.6 кв.м. и 13.2 кв.м. В доме печное отопление. Баня с небольшой парной. Торг. Участок 10 соток, есть своя сажалка не большая в конце участка, туалет на улице, из силикатных блоков, есть мини сарай из панельных плит, для хранения инвентаря, рядом с домом.
Местоположение
- Область
- Район
- Населенный пункт
- Номер дома
53
- Сельсовет
Новкинский с/с
- Координаты
55.106508958, 30.195655469
