Купить торговое помещение, г. Минск, ул. Грушевская, 106
4 391 р./м²
Продажа
Следить за ценой
Торговое помещение
Тип
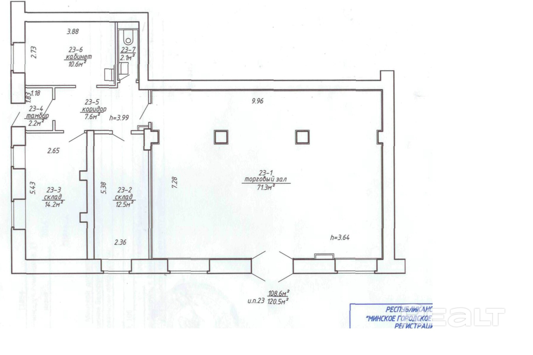
120.50 м²
Площадь
1 из 2
Этаж
11.03.2026ID 4053655
Параметры объекта
- Тип объекта
Торговое помещение
- Площадь общая
120.50 м²
- Этаж / этажность
1 / 2
- Год постройки
1958
- Раздельных помещений
5
- Материал стен
Кирпичный
- Высота потолков
3.5 м
- Ремонт
Нормальный
- Отопление
Есть
- Электроснабжение
380В
- Естественное освещение
Есть
- Вода
Есть
- Санузел
Есть
- Количество телефонов
2 телефона
- Принадлежность объекта
Частная
- НДС
НДС нет (0%)
- Расположение
В жилом доме
- Юридический адрес
Да
Оснащение
Сигнализация
Интернет
Отдельный вход
Примечание
Продам изолированное торговое помещение с действующим арендатором, договор по 31.07.2026г., можно продлить, можно выбрать нового, либо использовать самостоятельно, в зависимости от ваших целей. Густонаселённый район, отсутствие перепланировок, соответствие технического назначения, центральные коммуникации. Разумный торг. Агентства просьба не беспокоить.
Местоположение
- Область
- Населенный пункт
- Улица
- Номер дома
106
- Район города
- Микрорайон
- Координаты
53.8821, 27.5143
