Купить торговое помещение, г. Минск, ул. Восточная, 166
6 189 р./м²
Продажа
Следить за ценой
Торговое помещение
Тип
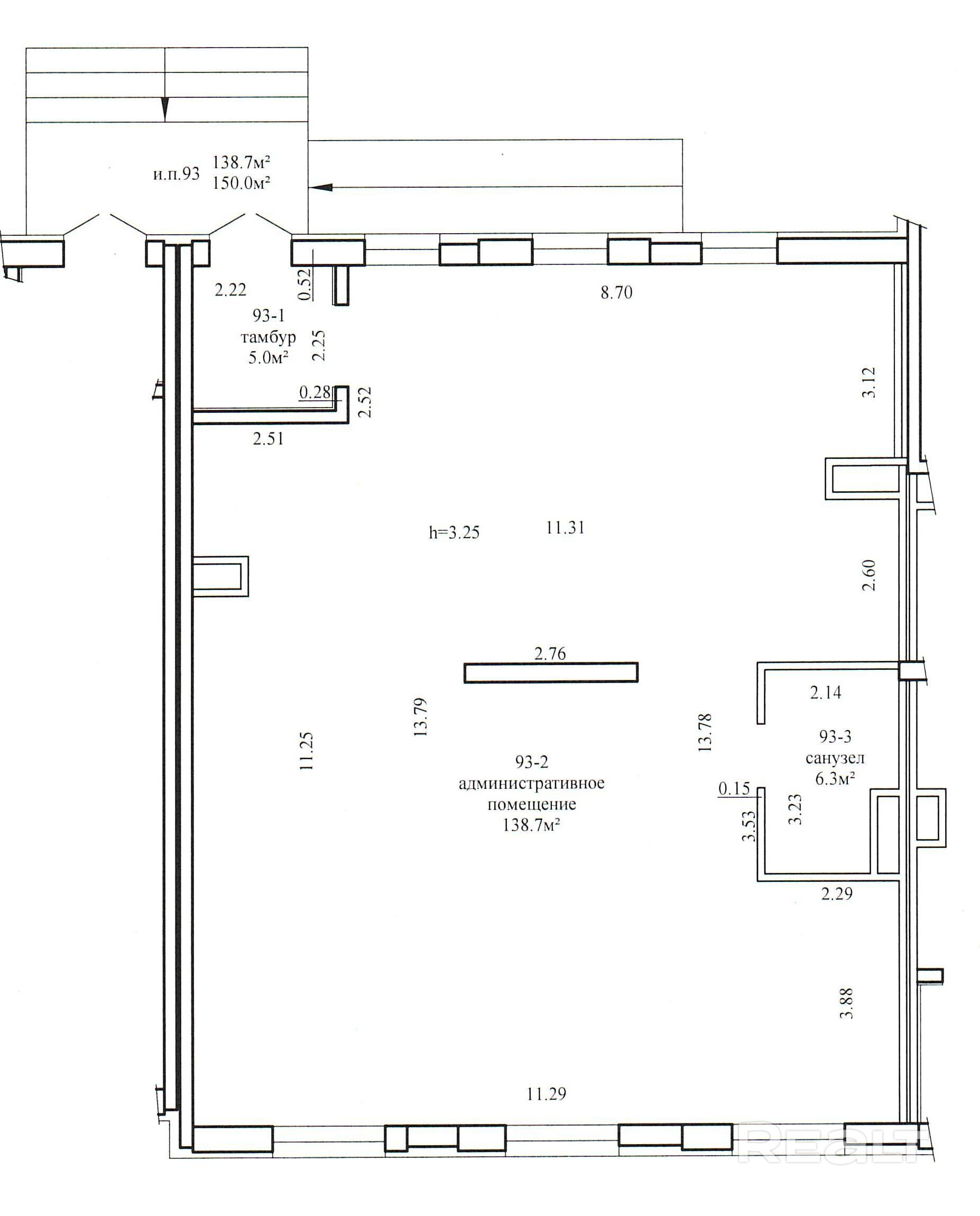
132 - 133 м²
Площадь
1 из 12
Этаж
21.05.2026ID 3991500
Параметры объекта
- Тип объекта
Торговое помещение
- Площадь общая
132 - 133 м²
- Этаж / этажность
1 / 12
- Год постройки
2026
- Раздельных помещений
1
- Материал стен
Блочный
- Высота потолков
3 м
- Ремонт
Хороший
- Отопление
Есть
- Электроснабжение
Есть
- Естественное освещение
Есть
- Вода
Есть
- Санузел
Есть
- Количество телефонов
1 телефон
- Парковка
Есть
- Принадлежность объекта
Частная
- НДС
НДС нет (0%)
- Расположение
В жилом доме
- Юридический адрес
Да
- Новостройка
Да
Оснащение
Оживленное место
Интернет
Отдельный вход
Продавец
Митя
Контактное лицо
Примечание
ПРОДАЕТСЯ отличное НОВОЕ помещение с ОТДЕЛЬНЫМ входом площадью 133м ВОЗЛЕ БУДУЩЕЙ СТАНЦИИ МЕТРО: c ОТДЕЛКОЙ; Open-Space; - ПЕРВАЯ линия; - 1-ый ПОЛНОЦЕННЫЙ этаж жилого дома; - высокие потолки (3,25м); - парковка перед/за домом; - вход на уровне тротуара + пандус; - новостройка 2026 года; - много света - окна с обеих сторон дома; - свой санузел; - пожарная сигнализация; - введено оптоволокно для интернета; -свой вентканал; - разводка электрики; - свои счетчики на все коммуникации.
Местоположение
- Область
- Населенный пункт
- Улица
- Номер дома
166
- Район города
- Микрорайон
- Координаты
53.9469, 27.605
