Купить баню/сауну, г. Минск, пер. Краснозвездный, 12/А
от 3 462 125 р.
Продажа
Следить за ценой
- г. Минскпер. Краснозвездный, 12/А
- Площадь Якуба Коласа
- На карте
Баня/сауна
Тип
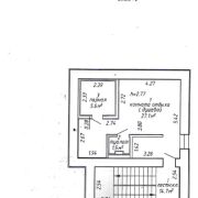
250.70 м²
Площадь
10.05.2026ID 4099008
Параметры объекта
- Тип объекта
Баня/сауна
- Площадь участка
2.56 сотки
- Площадь общая
250.70 м²
- Этажность
3
- Год постройки
1992
- Класс
A
- Раздельных помещений
5
- Материал стен
Кирпичный
- Высота потолков
3 м
- Ремонт
Хороший
- Отопление
Есть
- Электроснабжение
Есть
- Естественное освещение
Есть
- Вода
Есть
- Оборудование
Есть
- Парковка
Есть
- Принадлежность объекта
Частная
- НДС
НДС нет (0%)
- Юридический адрес
Да
Оснащение
Кондиционер
Оживленное место
Сигнализация
Видеонаблюдение
Охрана
Интернет
Отдельный вход
Мебель
Продавец
Ольга
Контактное лицо
Примечание
Продается отдельно стоящее 3-х этажное здание (с действующим SPA-бизнесом). Расположено в центре города (ЦУМ): высокий трафик, удобный подъезд, собственная стоянка. Площадь здания 250,7 кв. м. - 5 отдельных помещений (4 сауны) с 5 санузлами. Земельный участок 0,0256 га (аренда земли – до 31 августа 2047г). Год постройки -1992, год реконструкции -2022. Возможность использовать как готовый бизнес, так и перепрофилировать под другой формат. Чистая история объекта, готовность к быстрой сделке.
Местоположение
- Область
- Населенный пункт
- Улица
- Номер дома
12/А
- Район города
- Микрорайон
- Координаты
53.9113, 27.5858
