Продажа адм. помещения с арендатором в престижном районе Минска!
1 843 110 р.
Тип
Площадь
Этаж
Описание
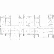
Продажа административного помещения 446.2 кв.м. на 1 этаже жилого дома в одном из престижных районов г.Минска с действующими арендаторами.
Кабинетная планировка, индивидуальная группа раздельных сан узлов, кухня с мокрой точкой, 3 отдельных входа, высота потолка h = 4.38 метра, большие окна.
Отделка офиса:
- напольное покрытие: плитка, линолеум
- отделка стен: окрашены;
- потолок типа Armstrong.
Инженерные системы и коммуникации:
- приточно-вытяжная вентиляция (собственная вентиляционная установка);
- электрическая мощность около 30 кВт
- разведены электрические и слаботочные сети;
- центральное водоснабжение и отопление;
- пожарная сигнализация.
Обслуживание здания товариществом собственников. Доступ 24/7.
Парковка:
Свободная плоскостная парковка у здания;
Инфраструктура:
Развитая инфраструктура общественного питания, продуктовых магазинов, сферы услуг, пункты оказания банковских услуг.
Поможем продать Вашу недвижимость для покупки этой!
Result Estate — ваш надёжный партнёр на рынке недвижимости.
20 лет опыта наших агентов по недвижимости — это ваш ключ к идеальной сделке: глубокое знание рынка, эксклюзивные предложения, юридическая безопасность и индивидуальный подход. Мы экономим ваше время, деньги и нервы, помогая купить, продать недвижимость быстро, выгодно и с уверенностью в результате!
Все актуальные предложения в одном месте — смотрите на нашем сайте.
Опишите свои пожелания — и мы оперативно подберем для вас лучшие варианты!
ООО «Результативная недвижимость», лицензия выдана Минюстом 26.09.2023 № 02240470, УНП 193703497
Связываясь с нами по данному объекту, Вы даете свое согласие на сбор и обработку персональных данных автоматически.
Параметры объекта
- Тип объекта
Сфера услуг
- Площадь общая
446.20 м²
- Этаж / этажность
1 / 10
- Год постройки
2013
- Раздельных помещений
1
- Материал стен
Панельный
- Ремонт
Хороший
- Отопление
Есть
- Электроснабжение
Есть
- Естественное освещение
Есть
- Вода
Есть
- Санузел
Есть
- Принадлежность объекта
Частная
- НДС
НДС нет (0%)
- Расположение
В жилом доме
- Номер договора
72/1 от 09.03.2026
Оснащение
Отдельный вход
Максим Пешевич
Агент по недвижимости
Примечание
Местоположение
- Область
- Населенный пункт
- Улица
- Номер дома
1
- Район города
- Микрорайон
- Координаты
53.9338, 27.4741
