Выделенная комната в 5 минутах от метро «Грушевка»! Потолки 3 метра.
70 100 р.
5 154 р.≈ 1 838 $ за м²
- г. Минскул. Щорса 2-я, 8
- Грушевка
- На карте
Комната
Кухня
Этаж
Описание
Выделенная комната в 5 минутах от метро «Грушевка»! Потолки 3 метра.
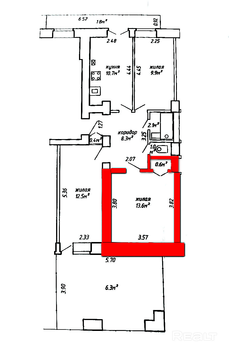
Продается уютная, выделенная комната площадью 13,6 кв.м. (доля 33/100) в трехкомнатной квартире по адресу: Минск, 2-я ул. Щорса, д. 8.
Преимущества объекта:
• Высокие потолки (3 метра): В комнате много воздуха и света, есть возможность реализовать интересные интерьерные решения.
• Комфортный микроклимат: Кирпичные стены дома обеспечивают отличную тепло- и шумоизоляцию.
• Отличное соседство: В квартире проживают спокойные, порядочные люди, что гарантирует вам комфортное проживание.
Инфраструктура и локация:
• Транспорт: Всего 5 минут неспешным шагом до станции метро «Грушевка». Отличное сообщение с любой точкой города.
• Природа: Прямо возле дома расположена уютная парковая зона — идеальное место для прогулок и отдыха.
• Сервис: В шаговой доступности магазины, аптеки, банки, спортивные залы и кафе.
Условия продажи:
Чистая продажа. Документы готовы к сделке. Никаких цепочек и ожиданий.
Звоните и приходите на просмотр! Это отличный вариант как для собственного проживания, так и для сдачи в аренду.
Параметры объекта
- Количество комнат
3
- Площадь общая
67.2 м²
- Площадь комнаты
13.6 м²
- Площадь кухни
10.7 м²
- Год постройки
1951
- Этаж / этажность
2 / 2
- Тип дома
Кирпичный
- Планировка
Сталинка
- Ремонт
Нормальный
- Высота потолков
3 м
- Санузел
Раздельный
- Собственность
Частная
- Условия продажи
Чистая продажа
- Номер договора
296/1 от 02.04.2026
Александр
Контактное лицо
Примечание
Местоположение
- Область
- Населенный пункт
- Улица
- Номер дома
8
- Район города
- Микрорайон
- Координаты
53.8844, 27.5146
