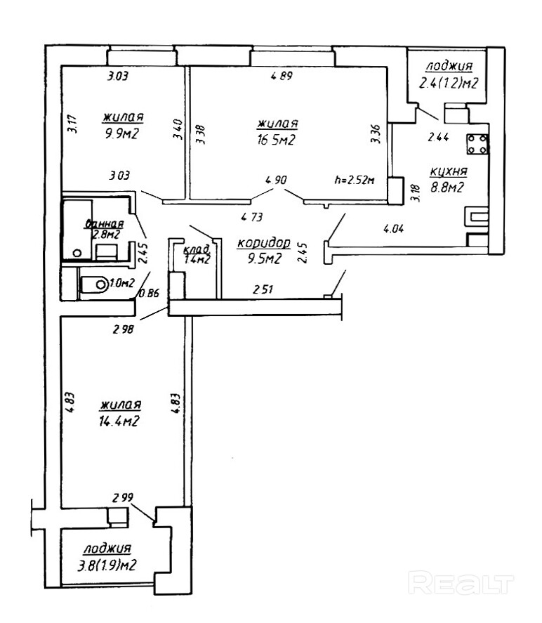
Продаются две выделенные комнаты 14,4 м2 и 9,9 м2 в трехкомнатной квартире.
167 135 р.
6 878 р.≈ 2 428 $ за м²
Комната
Кухня
Этаж
Описание
Продаются две выделенные комнаты 14,4 м2 и 9,9 м2 в трехкомнатной квартире. Кухня 8,8 м2. Раздельный санузел. Квартира расположена на третьем этаже семиэтажного кирпичного дома. Дом 1997 года постройки. Лифт новый. Комнаты после косметического ремонта. В одной комнате на полу линолеум, во второй ламинат под паркетную доску, поклеены обои, натяжной потолок. В комнате стеклопакет ПВХ. Вместительная лоджия также застеклена стеклопакетом. Имеется кладовая комната –отличное дополнительное место для хранения вещей. Тамбур на 2 квартиры. Чистый, ухоженный подъезд. Зеленый двор с просторной детской площадкой.
Отличная инфраструктура микрорайона. Рядом есть всё необходимое для комфортной и удобной жизни: детские сады (№65, №83, №132), школы №135, №124, №112, супермаркет «Green», детская и взрослая поликлиники, аптеки, банки, Чижовский рынок, «Мила»).
Вблизи дома находятся места для отдыха всей семьи: «Парк им. Н.Г. Грековой», «Парк 900-летия г. Минска», зоопарк, дельфинарий, ипподром, Чижовка-Арена. В шаговой доступности набережная с городской велодорожкой, оборудованный пляж для отдыха всей семьи «Жара».
Удобный выезд на МКАД. Разумный торг.
Лицензия: №02240/362 от 31.07.2018, Министерство юстиции РБ
Параметры объекта
- Количество комнат
3
- Площадь общая
64.3 м²
- Площадь комнаты
24.3 м²
- Площадь кухни
8.8 м²
- Год постройки
1997
- Этаж / этажность
3 / 7
- Тип дома
Кирпичный
- Балкон
Лоджия
- Ремонт
Хороший
- Высота потолков
2.5 м
- Санузел
Раздельный
- Собственность
Частная
- Условия продажи
Чистая продажа
- Номер договора
188/1 от 22.02.2026
Алексей Матяш
Агент по недвижимости
Примечание
Местоположение
- Область
- Населенный пункт
- Улица
- Номер дома
170
- Район города
- Микрорайон
- Координаты
53.8351, 27.6104
