Купить комнату, г. Минск, ул. Крупской, 2
48 119 р.
3 487 р.≈ 1 232 $ за м²
Комната
Кухня
Этаж
Описание
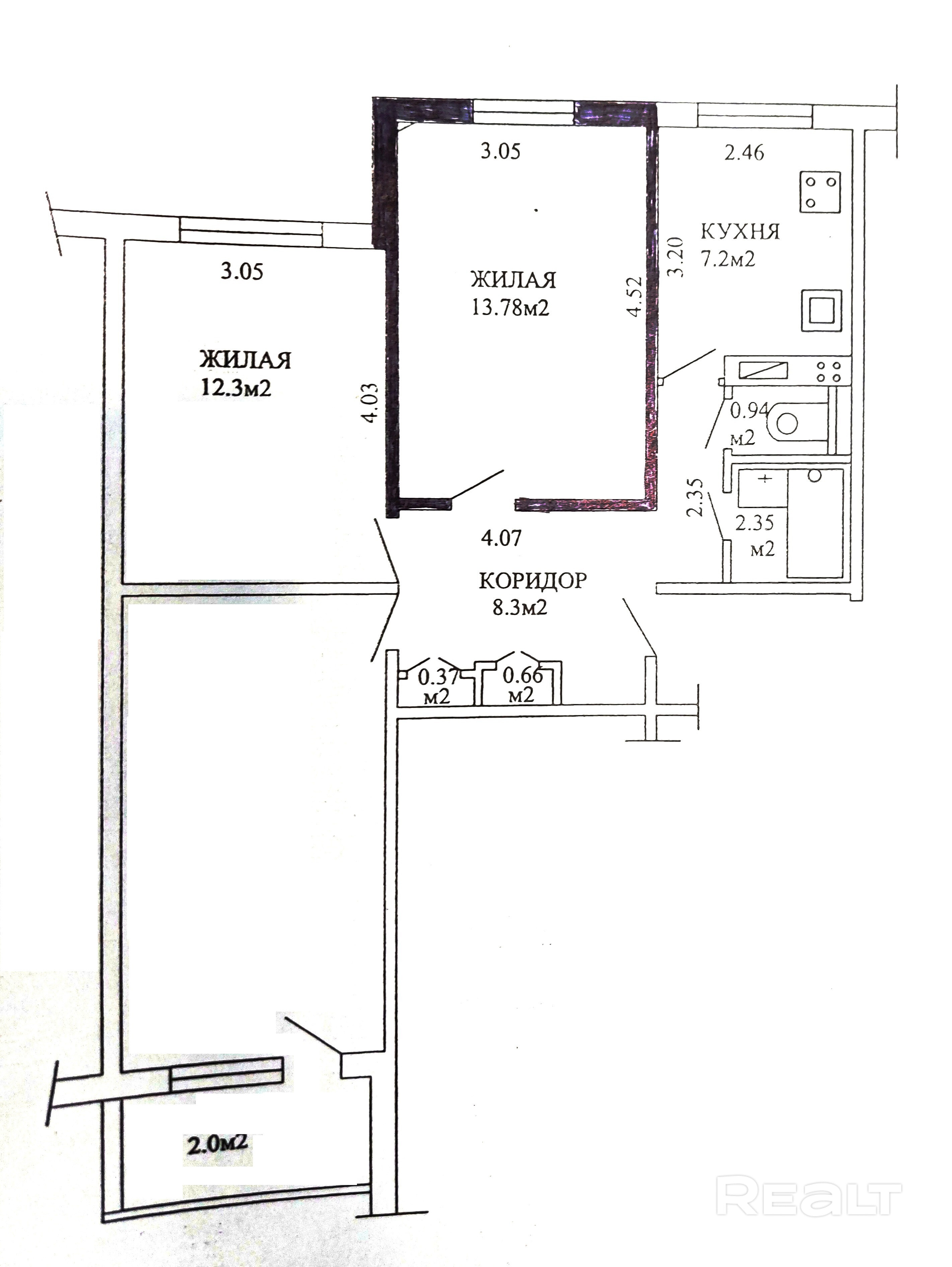
Продается выделенная комната в трехкомнатной квартире, расположенной по адресу: г. Минск, ул. Крупской, 2.
Площадь комнаты составляет 13,78 кв.м. Квартира располагается на пятом этаже девятиэтажного панельного дома. Размер доли составляет 31/100, которая состоит из одной жилой комнаты вышеуказанной площади. Кухня, коридор, ванная, туалет, встроенные шкафы находятся в общем пользовании.
Комната чистая, аккуратная (недавно выполнен ремонт).
Дом панельный 1977 года постройки. В 2024 году проведен капитальный ремонт дома.
В квартире три собственника (в каждой комнате). Общая площадь квартиры – 63 кв.м., площадь кухни – 7,2 кв.м. Комната без балкона. Места общего пользования нуждаются в ремонте.
Хорошее транспортное сообщение. Остановка общественного транспорта у дома.
В шаговой доступности магазины различной направленности, школа, детский сад.
Параметры объекта
- Количество комнат
3
- Площадь общая
63 м²
- Площадь комнаты
13.8 м²
- Площадь кухни
7.2 м²
- Год постройки
1977
- Год капитального ремонта
2024
- Этаж / этажность
5 / 9
- Тип дома
Панельный
- Ремонт
Хороший
- Санузел
Раздельный
- Стоянка автомобиля
Есть
- Собственность
Частная
- Условия продажи
Чистая продажа
- Номер договора
3/2 от 14.01.2025
Примечание
Местоположение
- Область
- Населенный пункт
- Улица
- Номер дома
2
- Район города
- Микрорайон
- Координаты
53.8582, 27.6307
