Продажа отдельно стоящего здания 1723,9 кВм район Логойский тракт, 18
7 076 250 р.
4 104 р.≈ 1 450 $ за м²
Тип
Площадь
Этаж
Описание
Продажа объекта под: пищевое производство, ресторан, кафе, магазин, офис, сфера услуг
Площадь: 1 723,9 м2
Пол: мрамор, плитка
Стены: окрашены, декоративная штукатурка
1 Этаж:
зал кафе с баром 275 м2 с выходом на улицу и панорамным остеклением
высота потолка 3,47м ; общая площадь этажа 500 м2
2 Этаж:
Зал кафе с баром 286 м2 с выходом на балкон, панорамным остеклением
Высота потолка 4,23м
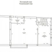
3 Этаж:
Технический этаж 175м2
Вент камера – современная система вентиляции и кондиционирования.
Цокольный этаж:
Кухня 102,8 м2
Множество подсобных помещений
Морозильная камера, помещения для кладовых и цехов
Высота потолка 2,99 м
комнаты для персонала, душевые.
Имеется рампа и лифт для разгрузки и подачи продуктов на кухню, а также второй лифт для подачи готовых блюд в банкетные залы.
Объект расположен в районе плотной жилой застройки, с видом на Севастопольский парк.
Активный транспортный и клиентский поток, близость жилых кварталов, в шаговой доступности БЦ «Парк Плаза».
4 Отдельных входа
Центральное: водоснабжение, отопление, канализация.
Отличные подъездные пути
Доступ 24/7
Парковка
Параметры объекта
- Тип объекта
Ресторан
- Площадь общая
1723.90 м²
- Этаж / этажность
1 / 3
- Год постройки
2024
- Раздельных помещений
20
- Материал стен
Блочный
- Высота потолков
4 м
- Ремонт
Хороший
- Отопление
Есть
- Электроснабжение
Есть
- Естественное освещение
Есть
- Вода
Есть
- Санузел
Есть
- Принадлежность объекта
Частная
- НДС
НДС нет (0%)
- Юридический адрес
Да
Примечание
Местоположение
- Область
- Населенный пункт
- Улица
- Номер дома
18
- Район города
- Микрорайон
- Координаты
53.946, 27.6179
