Купить помещение, г. Минск, ул. Немига, 12/А
1 674 605 р.
Тип
Площадь
Этаж
Описание
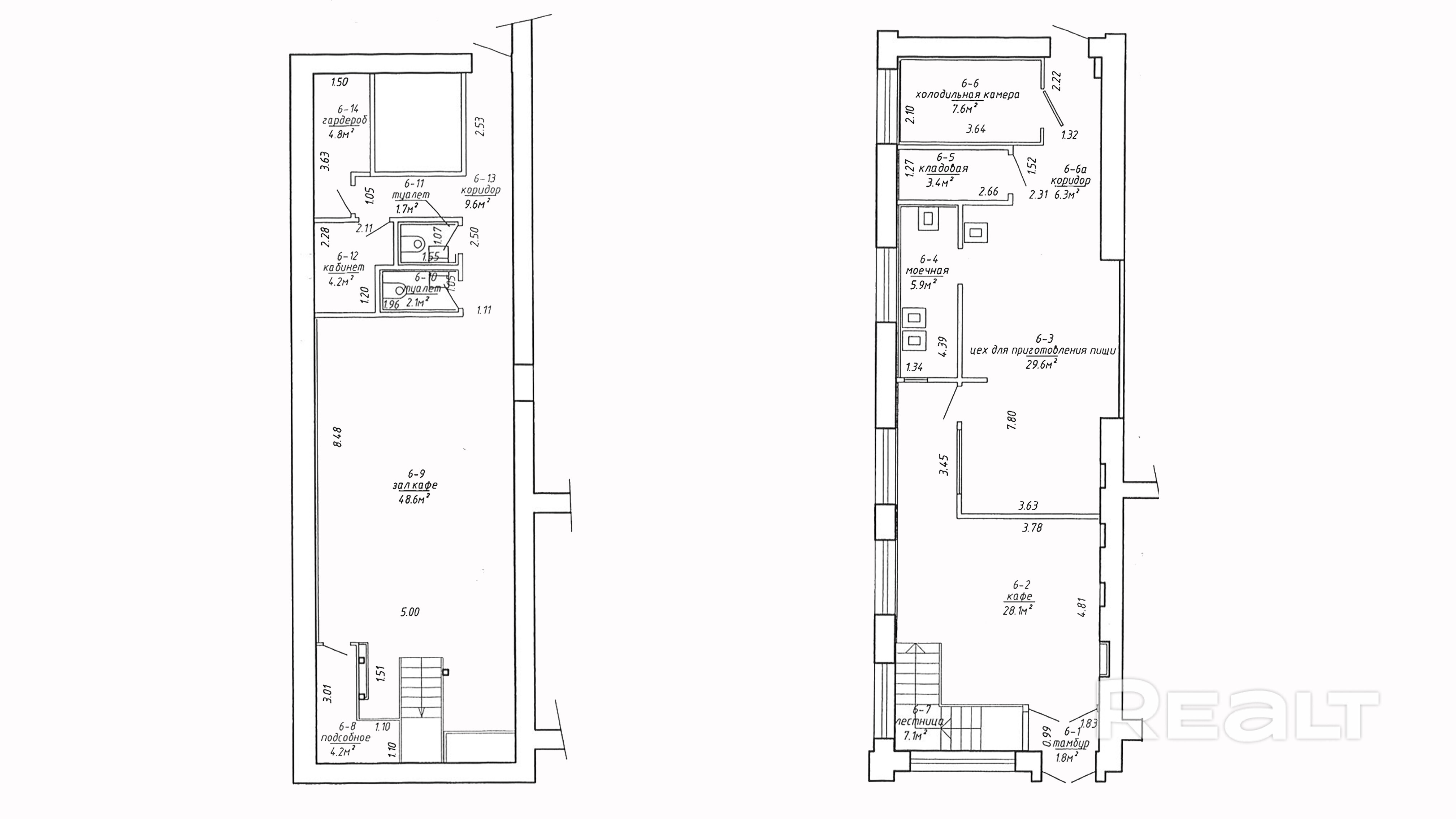
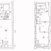
Продажа торгового помещения 165 кв.м. на 1 этаже административного здания в центре г.Минска с действующим арендатором.
Помещение сочетает в себе комбинированный формат открытого пространства и отдельных кабинетов. Назначение - "помещение общественного питания". Помещение сдано в аренду "Сайгон".
Отделка:
- напольное покрытие: плитка;
- отделка стен: окрашены;
- потолок типа Armstrong.
Инженерные системы и коммуникации:
- вентиляция с естественным побуждением движения воздуха;
- кондиционирование;
- разведены электрические сети;
- центральное водоснабжение и отопление;
- пожарная сигнализация.
Транспортное сообщение:
Более десяти маршрутов городского транспорта курсирует в шаговой доступности от здания, 5 минут до ст.м. "Немига".
Result Estate — ваш надёжный партнёр на рынке недвижимости.
20 лет опыта наших агентов по недвижимости — это ваш ключ к идеальной сделке: глубокое знание рынка, эксклюзивные предложения, юридическая безопасность и индивидуальный подход. Мы экономим ваше время, деньги и нервы, помогая купить, продать недвижимость быстро, выгодно и с уверенностью в результате!
Все актуальные предложения в одном месте — смотрите на нашем сайте.
Опишите свои пожелания — и мы оперативно подберем для вас лучшие варианты!
ООО «Результативная недвижимость», лицензия выдана Минюстом 26.09.2023 № 02240470, УНП 193703497
Связываясь с нами по данному объекту, Вы даете свое согласие на сбор и обработку персональных данных автоматически.
Параметры объекта
- Тип объекта
Помещение
- Площадь общая
165 м²
- Этаж
1
- Раздельных помещений
4
- Ремонт
Хороший
- Отопление
Есть
- Электроснабжение
Есть
- Вода
Есть
- Санузел
Есть
- Принадлежность объекта
Частная
- НДС
НДС нет (0%)
- Номер договора
40/3 от 26.05.2025
Оснащение
Отдельный вход
Павел Винников
Агент по недвижимости
Примечание
Местоположение
- Область
- Населенный пункт
- Улица
- Номер дома
12/А
- Район города
- Координаты
53.9024, 27.5486
