Продается участок с коммерческими помещениями
790 440 р.
- Минская областьМинский р-нд. Байдаки1
- На карте
Тип
Площадь
Этаж
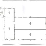
Описание
Многофункциональное комфортное помещение (под склад/производство/магазин).
Новое отапливаемое здание для склада, производства или магазина, отдельно стоящее, проф. освещение, высота потолков 4-5 м. Офис, гардеробная, санузел, котельная, горячая вода, наливной беспылевой теплый пол. Территория асфальтирована. Всё ограждено высоким забором и посадкой туй, ведётся круглосуточное видеонаблюдение со сдачей под охрану.
Хозяйственные постройки: хозблок 349 кв.м. (отапливаемый), пристройка 140 кв.м. (отапливаемая), сарай-пристройка 65 кв.м. (неотапливаемый), хозблок 86 кв.м. (не отапливаемый), навес 99 кв.м. всё это богатство расположено на участке в 12,9 сотки.
12,1 сотки можно взять в аренду.
Цена указана с НДС.
Без НДС цена обсуждается.
Параметры объекта
- Тип объекта
Помещение
- Площадь участка
12.9 соток
- Площадь общая
739 м²
- Этаж / этажность
1 / 1
- Год постройки
2013
- Раздельных помещений
8
- Материал стен
Кирпичный
- Ремонт
Хороший
- Отопление
Есть
- Электроснабжение
Есть
- Естественное освещение
Есть
- Вода
Есть
- Санузел
Есть
- Количество телефонов
1 телефон
- НДС
НДС включен
- Юридический адрес
Да
- Номер договора
4/1 от 18.12.2025
Оснащение
Видеонаблюдение
Охрана
Примечание
Местоположение
- Область
- Район
Минский район
- Населенный пункт
- Номер дома
1
- Сельсовет
Горанский с/с
- Направление
Раковское, 10.8 км от МКАД
- Координаты
53.914362894, 27.242543837


