Участок 10 соток возле Марьиной горки
11 076 р.
Тип
Участок
Описание
Адрес: СТ Будауник, уч. 126
Участок:
Участок 10 соток , статус - частная собственность.
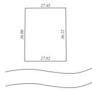
Размеры: Ш 28 м * Д 36 м.
Участок разработан, ужожен, высажен молодой сад.
Границы участка обозначены, со всех сторон огорожен сеткой рабицей.
Коммуникации:
Электричество 220 в хоз.постройке, счетчик в доме.
Сезонная вода на участке, в постройку не заводилась.
На участке:
Хоз. постройка - тип построения “каркасный”, внутри аккуратная отделка ОБС плитой, деревянной вагонкой, окрашено.
Помещение представлено двумя комнатами.
Постройка расположена в конце участка, всю остальную площадь можно планировать под застройку.
Инфраструктура рядом:
В 10 минутах ходьбы функционирует продуктовый магазин.
Вокруг лес - места сбора клюквы, грибов.
Можно добраться:
На машине: 1 час езды от края кольцевой (выезд Могилевская).
Своим ходом: электричкой Минск - Осиповичи до ж/д станции Веленский, пройти 15 минут (1,4 км) до участка.
Не упустите шанс приобрести этот ухоженный участок!
Звоните и записывайтесь на просмотр!
Поможем продать Вашу недвижимость для покупки этой!
Гарантия безопасности сделки и полное юридическое сопровождение!
Параметры объекта
- Тип объекта
Участок
- Площадь участка
9.98 соток
- Материал крыши
Шифер
- Газ
Нет
- Канализация
С/у на улице
- Электроснабжение
Есть
- Вода
Центральный водопровод
- Статус земли
Частная собственность
- Условия продажи
Чистая продажа
- Номер договора
444/1 от 30.10.2025
Инфраструктура
Водоем
Рядом лес
Сад
Хозпостройки
Примечание
Местоположение
- Область
- Район
- Населенный пункт
- Номер дома
126
- Сельсовет
Пуховичский с/с
- Направление
Пуховичское, 63 км от МКАД
- Координаты
53.466876, 28.187005
