Купить офис, г. Минск, ул. Притыцкого, 62
26 415 691 р.
3 587 р.≈ 1 300 $ за м²
- г. Минскул. Притыцкого, 62
- Кунцевщина
- На карте
Тип
Площадь
Описание
Продажа 3-го административного здания с действующими арендаторами в 5 минутах от ст.м. Кунцевщина.
Площадь здания составляет 7363,7 кв.м.
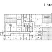
Площадь 1 этажа: 1469,88 м2 - располагается рецепция и офисные помещения
Площадь 2 этажа: 1472,9 м2 - располагаются офисные помещения
Площадь 3 этажа: 1597,71 м2 - располагаются офисные помещения
Площадь подвала: 2280,2 м2 - располагается тренажерный зал со спортивным инвентарем и иными помещения офисного назначения.
Лестничные клетки и пролеты: 543,01 м2
Помещение сочетает в себе комбинированный формат открытого пространства и отдельных кабинетов. Индивидуальная группа раздельных сан узлов. Доступ 24/7.
Площадь земельного участка составляет: 0,6251 га.
Отделка офиса:
- напольное покрытие: плитка/ковролин ;
- отделка стен: окрашены;
- потолок системы Arm strong.
Инженерные системы и коммуникации:
- естественная вентиляция;
- кондиционирование;
- разведены электрические и слаботочные сети;
- центральное водоснабжение;
- пожарная сигнализация.
Парковка:
Свободная плоскостная парковка у здания.
Транспортное сообщение:
Более десяти маршрутов городского транспорта курсирует в шаговой доступности от здания. В 5 минутах ходьбы ст.м. "Кунцевщина".
Инфраструктура:
Развитая инфраструктура общественного питания, продуктовых магазинов, сферы услуг, пункты оказания банковских услуг.
Result Estate — ваш надёжный партнёр на рынке недвижимости.
20 лет опыта наших агентов по недвижимости — это ваш ключ к идеальной сделке: глубокое знание рынка, эксклюзивные предложения, юридическая безопасность и индивидуальный подход. Мы экономим ваше время, деньги и нервы, помогая купить, продать недвижимость быстро, выгодно и с уверенностью в результате!
Все актуальные предложения в одном месте — смотрите на нашем сайте.
Опишите свои пожелания — и мы оперативно подберем для вас лучшие варианты!
ООО «Результативная недвижимость», лицензия выдана Минюстом 26.09.2023 № 02240470, УНП 193703497
Связываясь с нами по данному объекту, Вы даете свое согласие на сбор и обработку персональных данных автоматически.
Параметры объекта
- Тип объекта
Офис
- Площадь общая
7363.30 м²
- Этажность
3
- Отопление
Есть
- Естественное освещение
Есть
- Вода
Есть
- Санузел
Есть
- Парковка
Есть
- Принадлежность объекта
Частная
- НДС
НДС включен
- Номер договора
187/1 от 14.08.2024
Результативная недвижимость
Контактное лицо
Примечание
Местоположение
- Область
- Населенный пункт
- Улица
- Номер дома
62
- Район города
- Микрорайон
- Координаты
53.9099, 27.4586
