Купить офис, г. Минск, ул. Рафиева, 81/а
3 946 р./м²
Тип
Площадь
Описание
Продажа многофункционального Здания в Минске.
Локация: Минск, ул. Рафиева, 81А
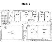
Общая площадь: 1314,5 м2
Современный архитектурный объект с сильной энергетикой, продуманной логикой потоков и редкими для Минска техническими параметрами.
Здание идеально подходит под:
-
офисные пространства
-
ритейл и шоу-румы
-
услуги и сервис
-
ресторан, кафе, фуд-концепции
-
смешанный арендный бизнес
Архитектура и пространство:
-
2 полноценных этажа + цоколь
-
Потолки до 3,5 м.
-
Панорамные окна — максимум света и визуального объёма
-
Алюминиевый оконный профиль
-
Более 4 отдельных входных групп — идеальная гибкость под арендаторов
-
Кирпичное здание с качественным ремонтом
Здание легко трансформируются под разные бизнес-сценарии — от единого корпоративного центра до мульти арендного объекта.
Инженерия и комфорт
-
Основная и резервная линия электроснабжения
-
Приточно-вытяжная вентиляция
-
Отопление, освещение
-
Оптоволоконная связь
-
Санузлы на этажах
Территория и доступность
-
Закрытый внутренний двор
-
Просторная наземная парковка
-
Удобные подъездные пути
-
В шаговой доступности остановки общественного транспорта
Почему это Здание - сильная инвестиция:
-
редкие технические параметры
-
готовность к эксплуатации без дополнительных вложений
-
высокий потенциал арендного дохода
-
ликвидность и понятная стратегия выхода
Покупатель не оплачивает услуги риэлтерской организации.
Result Estate — ваш надёжный партнёр на рынке недвижимости.
20 лет опыта наших агентов по недвижимости — это ваш ключ к идеальной сделке: глубокое знание рынка, эксклюзивные предложения, юридическая безопасность и индивидуальный подход. Мы экономим ваше время, деньги и нервы, помогая купить, продать недвижимость быстро, выгодно и с уверенностью в результате!
Все актуальные предложения в одном месте — смотрите на нашем сайте.
Опишите свои пожелания — и мы оперативно подберем для вас лучшие варианты!
ООО «Результативная недвижимость», лицензия выдана Минюстом 26.09.2023 № 02240470, УНП 193703497
Связываясь с нами по данному объекту, Вы даете свое согласие на сбор и обработку персональных данных автоматически.
Параметры объекта
- Тип объекта
Офис
- Площадь общая
1315 м²
- Раздельных помещений
35
- Материал стен
Кирпичный
- Ремонт
Хороший
- Отопление
Есть
- Электроснабжение
Есть
- Естественное освещение
Есть
- Вода
Есть
- Санузел
Есть
- Принадлежность объекта
Частная
- НДС
НДС включен
- Номер договора
36/1 от 09.02.2026
Егор Дубовский
Агент по недвижимости
Примечание
Местоположение
- Область
- Населенный пункт
- Улица
- Номер дома
81/а
- Район города
- Микрорайон
- Координаты
53.8615, 27.4414
