Купить офис, г. Минск, просп. Независимости, 40/А
1 434 667 р.
2 579 р.≈ 915 $ за м²
Продажа
Следить за ценой
- г. Минскпросп. Независимости, 40/А
- Площадь Победы
- 1 минута
- На карте
Офис
Тип
555 м²
Площадь
3 из 4
Этаж
вчера, 12:53ID 4047398
Параметры объекта
- Тип объекта
Офис
- Площадь общая
555 м²
- Этаж / этажность
3 / 4
- Год постройки
2004
- Материал стен
Блочный
- Высота потолков
3 м
- Ремонт
Хороший
- Отопление
Есть
- Электроснабжение
Есть
- Естественное освещение
Есть
- Вода
Есть
- Санузел
Есть
- Принадлежность объекта
Частная
- НДС
НДС нет (0%)
- Юридический адрес
Да
- Аукцион
Да
Оснащение
Оживленное место
Отдельный вход
Компьютерная сеть
Интернет
Продавец
Алексей
Контактное лицо
Примечание
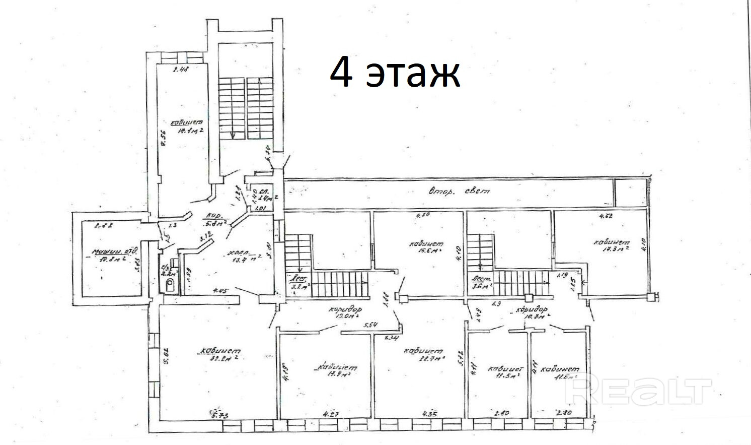
САМЫЙ ЦЕНТР ГОРОДА по ОЧЕНЬ ВЫГОДНОЙ ЦЕНЕ. Административное помещение 555 кв.м. рядом с пл. Победы. Хороший ремонт, ОТДЕЛЬНЫЙ ВХОД, свой лифт, все коммуникации: вода, электричество, центральное отопление, компьютерные сети. Готовое решение для вашего офиса или под арендный бизнес - в настоящее время помещение полностью сдано различным арендаторам. Просьба к посредникам - не беспокоить.
Местоположение
- Область
- Населенный пункт
- Улица
- Номер дома
40/А
- Район города
- Микрорайон
- Координаты
53.909, 27.5779
