Продажа офисов в центре Минска

5 869 - 7 336 р./м²

2 000 - 2 500 $/м²
Продажа
Следить за ценой
Офис

Тип

140 - 150 м²

Площадь

6 из 14

Этаж

24.11.2025ID 3605145
pdf
Обзор по коммерческой недвижимости
Данные формируются на базе сделок за 2024 год

Описание

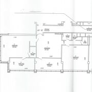
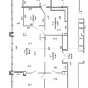
Продаются два готовых офиса на 6 этаже бизнес-центра «Дельта». Помещения имеют отличную планировку, качественный ремонт и панорамное остекление с видом на ТЦ «Палаццо» и посольский квартал.

Офисы полностью готовы к работе. Их оснащение включает систему кондиционирования и вентиляции, скоростной интернет, серверную комнату, мини-кухню и два санузла, один из которых с душевой кабиной, электронный доступ на этаж. Кабинеты меблированы.

Бизнес-центр отличается удобным подъездом, круглосуточной охраной. 

Площади предлагаемых офисов составляют 141,7 м2 и 150 м2. Оба офиса в настоящее время сдаются в долгосрочную аренду надежным арендатором.
Продажа осуществляется напрямую от собственника. 

 

Параметры объекта

  • Тип объекта

    Офис

  • Площадь общая

    140 - 150 м²

  • Этаж / этажность

    6 / 14

  • Класс

    A

  • Отопление

    Есть

  • Электроснабжение

    Есть

  • Вода

    Есть

  • Санузел

    Есть

  • Парковка

    Есть

  • Принадлежность объекта

    Частная

  • Расположение

    В бизнес центре

Оснащение

Кондиционер

Охрана

Мебель

Продавец

ООО " КАУГАР"

Контактное лицо

Примечание

Продажа офисов в Центре Минска от собственника. БЦ " Дельта"

Местоположение