Уютная евротрешка в Боровлянах!
394 938 р.
6 058 р.≈ 2 146 $ за м²
Общая
Жилая
Кухня
Этаж
Описание
Преимущества квартиры
Пространство и свет: Общая площадь 65.2 с жилой зоной 35.3 и кухней 8.2 обеспечивает комфортное зонирование для семьи. Благодаря удачному расположению комнат, пространство наполнено естественным светом.
Отсутствие лишнего: Квартира предлагается без мебели, что избавляет от необходимости демонтажа и вывоза старых вещей, ускоряя начало ремонтных работ.
Гибкая планировка: Конструктивные особенности дома 2014 года постройки часто позволяют объединять зоны или изменять назначение комнат в зависимости от ваших потребностей.
Локация и инфраструктура
Экология и природа: Дом расположен в одном из самых «зеленых» пригородов Минска. В 5-10 минутах ходьбы находится сосновый бор, что гарантирует свежий воздух и отличные места для прогулок.
Параметры объекта
- Количество комнат
3
- Раздельных комнат
2
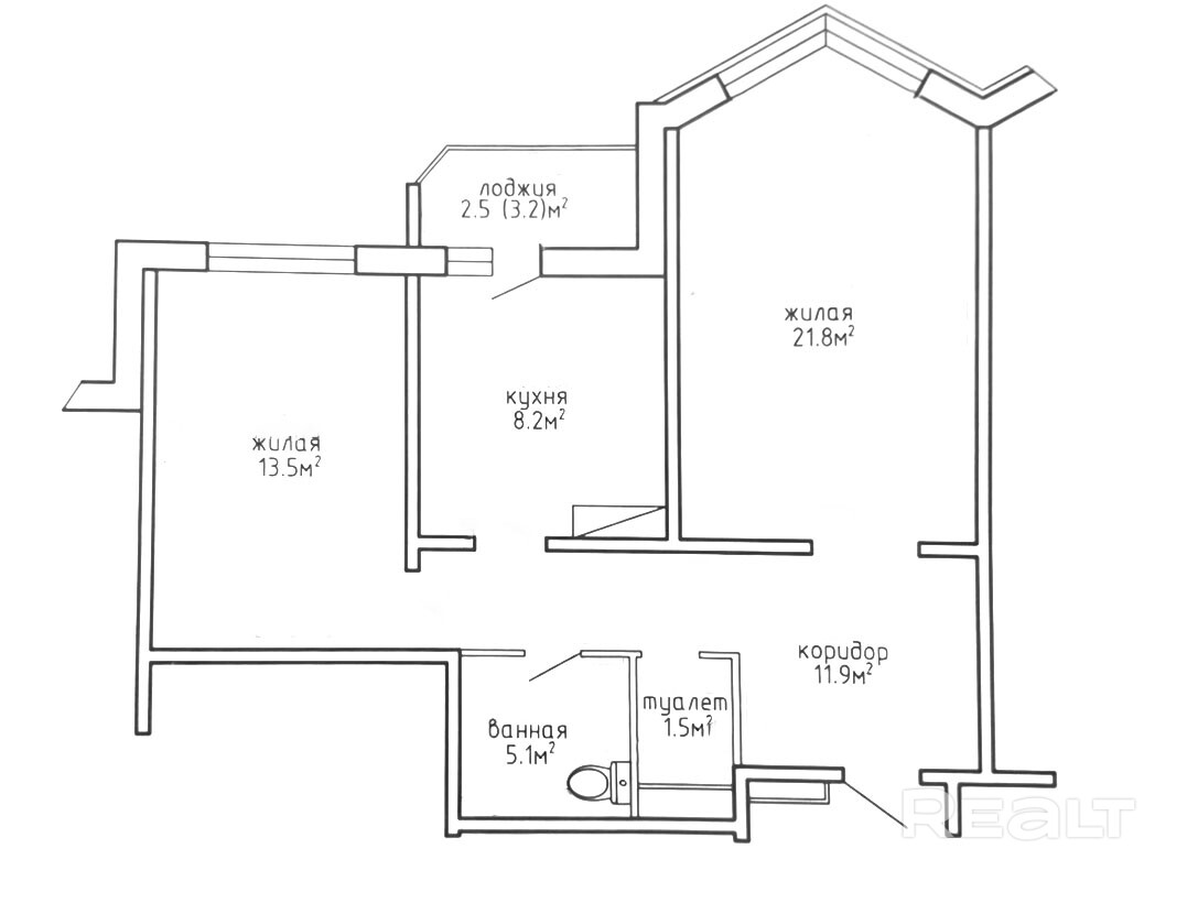
- Площадь общая
65.2 м²
- Площадь жилая
35.3 м²
- Площадь кухни
8.2 м²
- Год постройки
2014
- Этаж / этажность
1 / 3
- Тип дома
Панельный
- Балкон
Лоджия
- Ремонт
Нормальный
- Санузел
Раздельный
- Стоянка автомобиля
Есть
- Собственность
Частная
- Условия продажи
Чистая продажа
- Номер договора
143/1 от 24.04.2026
- Вид из окон
На улицу
Удобства
Телефонная сеть
Примечание
Местоположение
- Область
- Район
- Населенный пункт
- Улица
- Номер дома
106
- Сельсовет
Боровлянский с/с
- Направление
Логойское, 5 км от МКАД
- Координаты
54.0009, 27.6766
