Эксклюзивное предложение: 3-к квартира с премиальным ремонтом в Боровлянах
457 960 р.
5 640 р.≈ 2 031 $ за м²
Общая
Жилая
Кухня
Этаж
Описание
Продается статусная 3-комнатная квартира по адресу ул. 40 лет Победы, 30. Ремонт делался «для себя» с использованием материалов ведущих европейских брендов.
Особенности объекта:
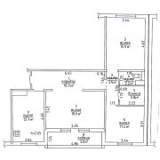
- 3 излоированные комнаты, просторная кухня, высота потолков 2,65 м.
- Комфорт: Кондиционер для идеального микроклимата, вместительная парковка, много мест для хранения вещей.
- Безопасность: Входная дверь с повышенной шумоизоляцией и надежными замками. Огороженная территория дома с видеонаблюдением.
- Локация: Тихий центр Боровлян, прямой вид на сосновый лес, чистейший воздух.
Вам не нужно тратить месяцы на ремонт, закупку материалов и контроль строителей. Квартира полностью готова к заселению и не требует дополнительных вложений.
Идеальное место для жизни семьи, совмещающее комфорт городского жилья и близость к природе.
Общество с ограниченной ответственностью «ЮГ Хоум»
УНП: 193511758
Лицензия: 02240/412 от 19.03.2021, Министерство юстиции РБ (риэлтерские услуги).
Параметры объекта
- Количество комнат
3
- Раздельных комнат
3
- Площадь общая
81.2 м²
- Площадь жилая
45.3 м²
- Площадь кухни
12.7 м²
- Год постройки
2007
- Этаж / этажность
8 / 10
- Тип дома
Панельный
- Балкон
Лоджия
- Ремонт
Хороший
- Высота потолков
2.5 м
- Санузел
Раздельный
- Возможен торг
Да
- Собственность
Частная
- Условия продажи
Чистая продажа
- Номер договора
153/1 от 14.04.2026
- Вид из окон
Во двор
Рекламодатель - физическое лицо
ООО "ЮГ Хоум"
Агентство недвижимости
УНП: 193511758 Лицензия: 02240/412 (риэлтерские услуги) МЮ РБ, 18.03.2021
Катерина Шелех
Риэлтер
Примечание
Местоположение
- Область
- Район
- Населенный пункт
- Улица
- Номер дома
30
- Сельсовет
Боровлянский с/с
- Направление
Логойское, 5 км от МКАД
- Координаты
53.99, 27.6728


