ПРОДАЖА 1-комнатной квартиры по адресу: Слободской пр-д, 24 в МАЛИНОВКЕ!
230 843 р.
6 596 р.≈ 2 340 $ за м²
Общая
Жилая
Кухня
Этаж
Описание
Продается солнечная, уютная однокомнатная квартира в микрорайоне Малиновка по адресу: Слободской проезд, 24. Идеальный вариант как для жизни, так и инвестиций!
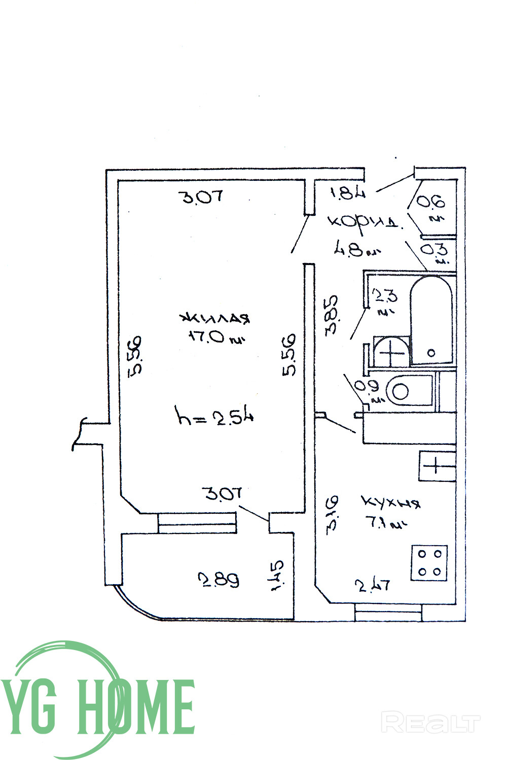
Квартира расположена в панельном десятиэтажном доме 1994 года постройки на комфортном 2-м этаже. Общая площадь – 33.0 кв.м. + площадь лоджии!, жилая площадь – 17.0 кв.м., кухня 7.1 кв.м., высота потолков 2.54 м.
Дом расположен во дворах и закрыт от активного движения дорог. При этом в шаговой доступности есть всё необходимое: школы, гимназии, детские сады, детская и взрослые поликлиники, частные медцентры, СК М.Мирного, многочисленные продуктовые магазины, рынок Максимус, банки, аптеки, парикмахерские и многое другое для комфортной жизни.
Неподалеку от дома зеленая зона - Парк Муравицкие холмы, а также пешком можно дойти до живописного парка им. М. Павлова.
Квартира готова к проживанию. Состояние жилое - окна ПВХ, на полу ламинат/линолеум/плитка, установлена металлическая входная дверь, ванная/туалет облицованы плиткой, лоджия просторная, обшита вагонкой. В квартире остаются встроенный кухонный гарнитур, газовая плита, вытяжка, шкаф-купе в гостиной и коридоре. Окошки квартиры выходят на Восток. Квартира очень теплая.
Подъезд в жилом состоянии, установлен новый лифт. Тамбур на две квартиры. Двор зеленый и аккуратный с достаточным количеством парковочных мест.
Удобное транспортное сообщение - автобусы, троллейбусы и маршрутки; остановка общественного транспорта в 3х минутах ходьбы от дома; ст.м.Малиновка – в нескольких остановках/20 минут пешим шагом от дома. Быстрый выезд на МКАД.
Тихое и спокойное место для комфортной жизни!
Звони/пишите, организуем показ в удобное время!
Мы гарантируем быструю и комфортную сделку.
Поможем выгодно продать вашу недвижимость для покупки нашей!
Общество с ограниченной ответственностью «ЮГ Хоум»
УНП: 193511758
Лицензия: 02240/412 от 19.03.2021, Министерство юстиции РБ.
Параметры объекта
- Количество комнат
1
- Площадь общая
35 м²
- Площадь жилая
17 м²
- Площадь кухни
7.1 м²
- Год постройки
1994
- Этаж / этажность
2 / 10
- Тип дома
Панельный
- Балкон
Лоджия
- Ремонт
Хороший
- Высота потолков
2.5 м
- Санузел
Раздельный
- Стоянка автомобиля
Есть
- Собственность
Частная
- Условия продажи
Подбираются варианты
- Номер договора
145/1 от 12.04.2026
- Вид из окон
Во двор
Удобства
Интернет
Лифт
Примечание
Местоположение
- Область
- Населенный пункт
- Улица
- Номер дома
24
- Район города
- Микрорайон
- Координаты
53.8502, 27.4489


