Купить 3-комнатную квартиру, г. Минск, ул. Кунцевщина, 32
350 500 р.
5 521 р.≈ 1 969 $ за м²
Чистая продажа
Следить за ценой
- г. Минскул. Кунцевщина, 32
- Каменная горка
- На карте
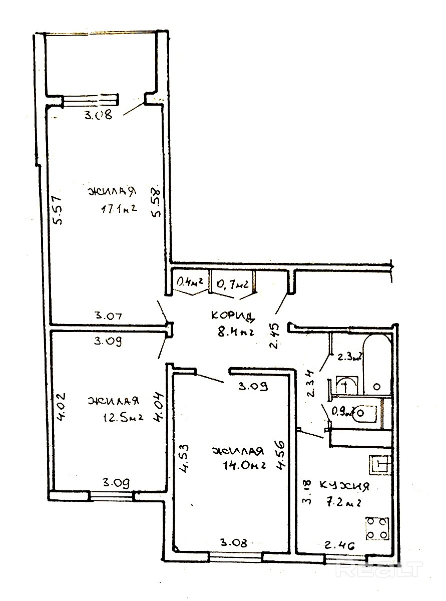
63.5 м²
Общая
43.6 м²
Жилая
7.2 м²
Кухня
8 из 9
Этаж
21.04.2026ID 4071771
Параметры объекта
- Количество комнат
3
- Раздельных комнат
3
- Площадь общая
63.5 м²
- Площадь жилая
43.6 м²
- Площадь кухни
7.2 м²
- Площадь балконов
2.1 м²
- Площадь по СНБ
65.6 м²
- Год постройки
1990
- Этаж / этажность
8 / 9
- Тип дома
Панельный
- Балкон
Лоджия
- Ремонт
Нормальный
- Санузел
Раздельный
- Возможен торг
Да
- Собственность
Частная
- Условия продажи
Чистая продажа
Продавец
Екатерина
Контактное лицо
Примечание
Продается 3-хкомнатная квартира. В тамбуре 2 квартиры. Полы: лиственница в жилых комнатах, ламинат в прихожей. плитка в кухне, санузлах. Окна, лоджия: Стеклопакеты. Выход на лоджию - деревянная рама. Стены ровные. Потолки покрашены. Двери - массив. Шкаф-купе на 4 двери в прихожей. Кухонный гарнитур, газ. варочная панель, вытяжка на кухне. Бойлер на 30 литров. Фильтры воды для душа, питьевой. Самые красивые закаты в микр-е Кунцевщина. Из окон этой квартиры они восхитительны, как и рассветы.
Местоположение
Каменная горка3 минуты
Кунцевщина10 минут
- Область
- Населенный пункт
- Улица
- Номер дома
32
- Район города
- Микрорайон
- Координаты
53.9121, 27.4375
