Купить 2-комнатную квартиру, г. Минск, ул. Лукьяновича, 2/В
438 292 р.
4 126 р.≈ 1 464 $ за м²
- г. Минскул. Лукьяновича, 2/В
- Московская
- 10 минут
- На карте
Общая
Жилая
Кухня
Этаж
Описание
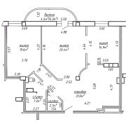
Продаётся просторная двухкомнатная - евротрёхкомнатная квартира в Советском районе г. Минска, ул.Лукьяновича, 2В рядом с Севастопольским парком!
13/14 этажного каркасно-блочного дома.
Площадь СНБ 106,2 кв.м., общая 101,8 кв.м., жилая 46 кв.м., кухня 14.9 кв.м.
Год постройки 2014.
Квартира без отделки. Высокие потолки. Раздельный санузел.
Удобное расположение дома, тихий двор, въезд на территорию только для жильцов дома, установлен шлагбаум. Консьерж в подъезде. Импортные лифты с выходом на подземный паркинг. Достаточно парковочных мест. Под домом находится гараж в два уровня. Хорошая инфраструктура, магазины, банки, школа, сады всё рядом. Квартиру можно переоборудовать в трёхкомнатную, несущих стен нет.
Пока в других жилых комплексах дома только строятся, у Вас есть возможность стать обладателем уникальной квартиры прямо сейчас!
Чистая продажа. Ключи в день сделки.
Поможем в кредитовании и выгодной продаже вашей недвижимости!
Вы можете позвонить по телефону или написать в любой удобный мессенджер.
Общество с ограниченной ответственностью «ЮГ Хоум»
УНП: 193511758
Лицензия: 02240/412 от 19.03.2021, Министерство юстиции РБ (риэлтерские услуги).
Параметры объекта
- Количество комнат
2
- Раздельных комнат
2
- Площадь общая
106.2 м²
- Площадь жилая
46 м²
- Площадь кухни
14.9 м²
- Год постройки
2014
- Этаж / этажность
13 / 14
- Тип дома
Каркасно-блочный
- Балкон
Лоджия
- Ремонт
Без отделки
- Высота потолков
2.7 м
- Санузел
Совмещенный
- Стоянка автомобиля
Есть
- Собственность
Частная
- Условия продажи
Чистая продажа
- Номер договора
81/1 от 11.03.2026
Примечание
Местоположение
- Область
- Населенный пункт
- Улица
- Номер дома
2/В
- Район города
- Микрорайон
- Координаты
53.9441, 27.6059


