Купить 3-комнатную квартиру, г. Минск, ул. Лукьяновича, 2/В
436 022 р.
4 105 р.≈ 1 464 $ за м²
- г. Минскул. Лукьяновича, 2/В
- Московская
- 10 минут
- На карте
Общая
Жилая
Кухня
Этаж
Описание
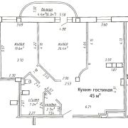
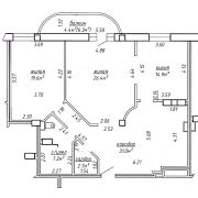
Продаётся просторная двухкомнатная - евротрёхкомнатная квартира в Советском районе г. Минска, ул.Лукьяновича, 2В рядом с Севастопольским парком!
13/14 этажного каркасно-блочного дома.
Площадь СНБ 106,2 кв.м., общая 101,8 кв.м., жилая 46 кв.м., кухня 14.9 кв.м.
Год постройки 2014.
Квартира без отделки. Высокие потолки. Раздельный санузел.
Удобное расположение дома, тихий двор, въезд на территорию только для жильцов дома, установлен шлагбаум. Консьерж в подъезде. Импортные лифты с выходом на подземный паркинг. Достаточно парковочных мест. Под домом находится гараж в два уровня. Хорошая инфраструктура, магазины, банки, школа, сады всё рядом. Квартиру можно переоборудовать в трёхкомнатную, несущих стен нет.
Чистая продажа. Возможен торг.
Параметры объекта
- Количество комнат
3
- Раздельных комнат
3
- Площадь общая
106.2 м²
- Площадь жилая
46 м²
- Площадь кухни
14.9 м²
- Год постройки
2014
- Этаж / этажность
13 / 14
- Тип дома
Каркасно-блочный
- Балкон
Лоджия
- Ремонт
Без отделки
- Высота потолков
2.7 м
- Санузел
Совмещенный
- Стоянка автомобиля
Есть
- Собственность
Частная
- Условия продажи
Чистая продажа
- Номер договора
81/1 от 11.03.2026
- Вид из окон
Во двор
Примечание
Местоположение
- Область
- Населенный пункт
- Улица
- Номер дома
2/В
- Район города
- Микрорайон
- Координаты
53.9441, 27.6059


