Продажа ВИДОВОЙ однокомнатной квартиры в ТИХОМ центре с подземным ПАРКИНГОМ у МЕТРО!
429 012 р.
8 684 р.≈ 3 097 $ за м²
- г. Минскпер. Горный, 8
- Площадь Якуба Коласа
- На карте
Общая
Жилая
Этаж
Описание
Продается полностью готовая к проживанию солнечная, видовая однокомнатная квартира в микрорайоне Золотая Горка, что возле площади Победы между ст.метро «Площадь Победы» и «Площадь Якуба Коласа». Из квартиры открываются потрясающие виды на панораму Минска.
Квартира расположена в каркасно-блочном жилом доме высокой комфортности с дизайнерской отделкой коридоров и вестибюля 2019 года постройки на 10-м этаже из 12 возможных. Окошки выходят на юго-запад.
В доме один подъезд, два лифта Otis, один из которых грузовой. Есть двухуровневый подземный паркинг на 80 мест (лифт спускается в паркинг), плюс еще более 20 гостевых парковок во дворе. Предусмотрена зарядка электромобилей.
Территория дома огорожена, въезд под шлагбаум, ведется видеонаблюдение 24/7 внутри и снаружи. IP- домофон с видеосвязью. На входе круглосуточно работает консьерж.
Дворовая территория: детская и спортивная площадка с уличными тренажерами.
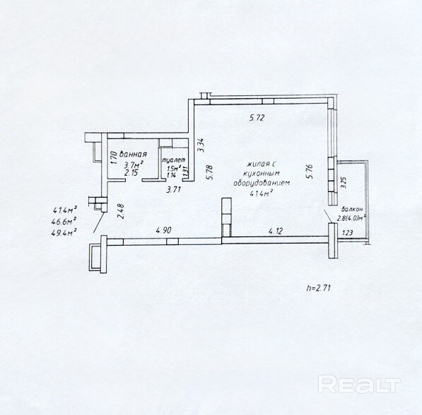
Общая площадь квартиры по СНБ – 49.4 кв.м., общая площадь - 46.6 кв.м., жилая площадь – 41.4 кв.м., высота потолков - 2.71 м.
Квартира отлично спланирована – есть уютная кухня-гостиная, изолированная спальня с выходом на балкон, вместительная гардеробная, ванна, туалет и просторная прихожая.
Дизайнерский ремонт в квартире выполнен в приятных светлых тонах, использованы качественные стройматериалы. Квартира укомплектована всей необходимой мебелью и техникой (духовой шкаф, варочная поверхность, посудомоечная машина, вытяжка, стиральная машина, два кондиционера), необходимой для комфортного проживания. Предусмотрены выводы для установки домофона. Оригинальное световое решение продумано до мелочей. Квартира продается со всей мебелью и техникой!!!
Квартира продаётся только ВМЕСТЕ с машино-местом 14 кв.м. на минус 2-м цокольном этаже за дополнительную стоимость экв. 18 тыс. у.е.
Развитая инфраструктура - школы, детские сады, художественная школа, медицинские центры, банки, аптеки, салоны красоты, сквер, кафе, рестораны и многое-многое другое.
Отличное транспортное сообщение!
Чистая продажа. Показы в удобное для Вас время. Эту квартиру нужно видеть!!!
Мы гарантируем быструю и комфортную сделку.
Поможем продать вашу недвижимость для покупки нашей!
Общество с ограниченной ответственностью «ЮГ Хоум»
УНП: 193511758
Лицензия: 02240/412 от 19.03.2021, Министерство юстиции РБ.
Параметры объекта
- Количество комнат
1
- Площадь общая
49.4 м²
- Площадь жилая
41.4 м²
- Площадь балконов
2.8 м²
- Год постройки
2019
- Этаж / этажность
10 / 12
- Тип дома
Каркасно-блочный
- Планировка
Свободная планировка
- Балкон
Балкон
- Ремонт
Отличный
- Высота потолков
2.7 м
- Мебель
Есть
- Санузел
Раздельный
- Стоянка автомобиля
Есть
- Собственность
Частная
- Условия продажи
Чистая продажа
- Номер договора
69/1 от 04.03.2026
- Вид из окон
Во двор
Удобства
Охрана/консьерж
Интернет
Лифт
Видеонаблюдение
Примечание
Местоположение
- Область
- Населенный пункт
- Улица
- Номер дома
8
- Район города
- Микрорайон
- Координаты
53.9102, 27.5886


