Продажа просторной 2-к квартиры на Каменной Горке
396 491 р.
5 498 р.≈ 1 940 $ за м²
Общая
Жилая
Кухня
Этаж
Описание
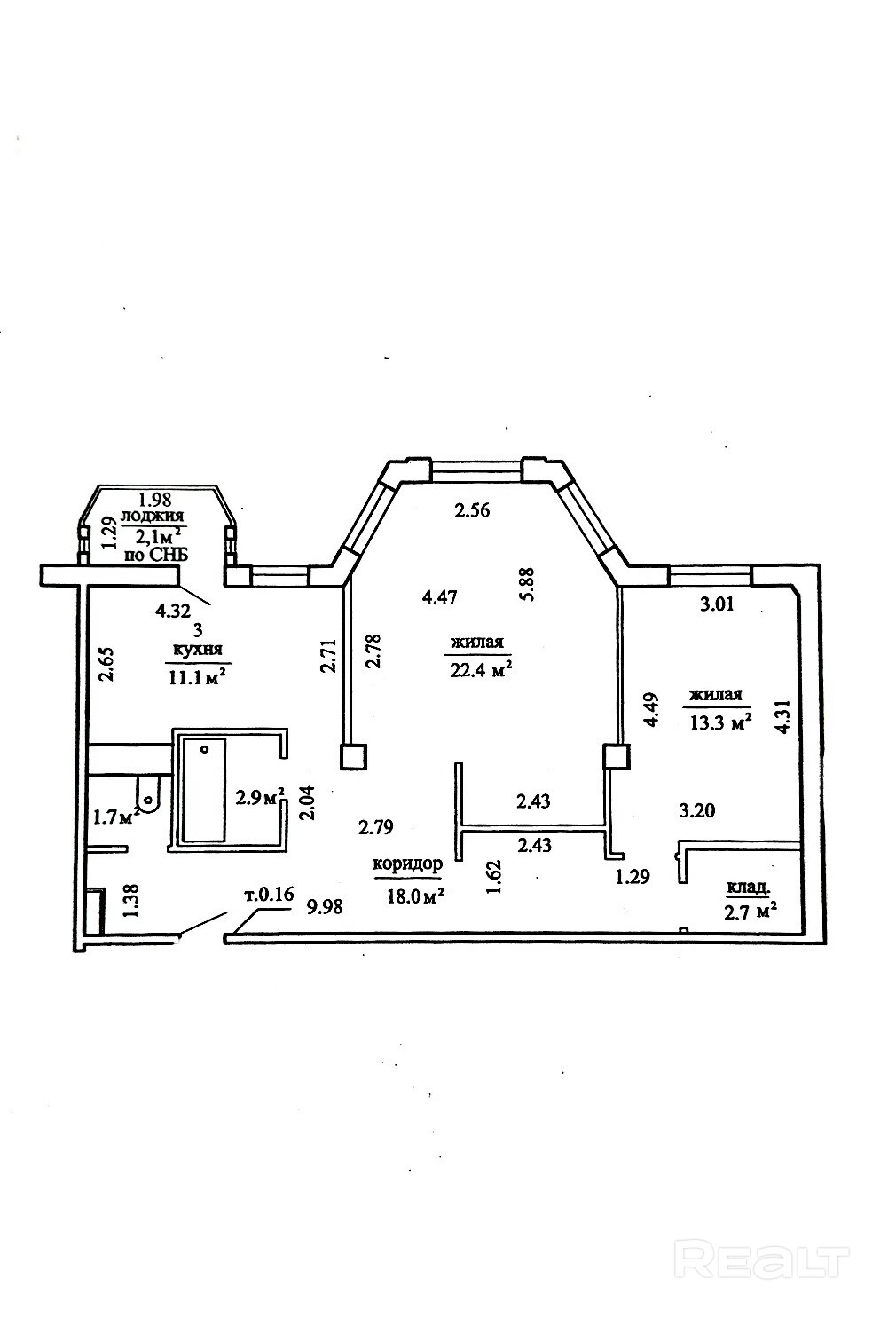
Представляем вашему вниманию уютную и светлую двухкомнатную квартиру, расположенную на 4-м этаже 9-этажного дома.
Общая площадь квартиры составляет 72.1 м2, что обеспечивает комфортное пространство для жизни.
Преимущества квартиры:
• Удачная планировка: Две изолированные комнаты, что позволяет каждому члену семьи иметь свое личное пространство.
• Функциональность: Наличие кладовой – отличное решение для хранения вещей ( оборудована гардеробная ).
- Удобство: Раздельный санузел.
- Просторная кухня: Большая кухня 11.1м2 является сердцем дома, где будет приятно собираться всей семьей. Кухня имеет выход на лоджию, что добавляет функциональности и места для отдыха.
Инфраструктура района:
Квартира находится в развитом микрорайоне с отличной инфраструктурой, что делает проживание здесь максимально комфортным:
- Образование: В шаговой доступности находятся детские сады и школы, что идеально подходит для семей с детьми.
- Торговля и услуги: Множество магазинов, торговых центров, уютных кофеен, банковских отделений и аптек – все необходимое для повседневной жизни находится рядом.
Дополнительная информация:
- Этаж: 4 из 9
- Жилая площадь: 35.7 кв.м.
- Количество комнат: 2 (раздельные)
- Санузел: Раздельный
- Год постройки:2009
Эта квартира – отличный вариант для тех, кто ценит комфорт, функциональность и развитую инфраструктуру. Прекрасное место для создания семейного очага!
Звоните прямо сейчас, чтобы узнать подробности и договориться о просмотре!
Окажем профессиональную помощь в продаже Вашего объекта недвижимости для приобретения данной квартиры!
Параметры объекта
- Количество комнат
2
- Раздельных комнат
2
- Площадь общая
72.1 м²
- Площадь жилая
35.7 м²
- Площадь кухни
11.1 м²
- Год постройки
2009
- Этаж / этажность
4 / 9
- Тип дома
Панельный
- Балкон
Лоджия
- Ремонт
Отличный
- Мебель
Есть
- Санузел
Раздельный
- Возможен торг
Да
- Собственность
Частная
- Условия продажи
Чистая продажа
- Номер договора
19/1 от 09.02.2026
- Вид из окон
Во двор
Удобства
Лифт
Примечание
Местоположение
- Область
- Населенный пункт
- Улица
- Номер дома
36
- Район города
- Микрорайон
- Координаты
53.9236, 27.4411
