Уютная, просторная, светлая и чистая с очень современной планировкой.
72 904 р.
1 612 р.≈ 575 $ за м²
Общая
Жилая
Кухня
Этаж
Описание
Уютная, просторная, светлая и чистая с очень современной планировкой - двухкомнатная квартира, площадью 45,2 м2 возле г. Столбцы, готова к проживанию! Находится в 65 км от МКАД г. Минска (Р1 и Е30/М1)в а/г Заямное.
Дом кирпичный. Теплый! Уютный подъезд. В квартире тихо. Уютный двор и придомовая территория. Во дворе детский садик, рядом школа и магазин. С квартирой вместе продается сарай.
Установлены счетчики воды и электроэнергии, телефон, оптоволокно- интернет и телевизор.
Квартира расположена в тихом и спокойном районе, хорошие соседи.
Рядом- места для отдыха: красивое озеро и река Нёман в 1,5-2 км, в радиусе 10 км такие туристические объекты как: турбаза Высокий Берег, Мирской замок, Несвижский замок , музей Якуба Колоса и др.
Отличное транспортное сообщение с Минском. Не только обычные электрички, но и Городские Линии, и маршрутки, каждые 20-30 мин, до станции метро Малиновка, и вы уже в Минске через 45мин.
Инфраструктура в Столбцах: Евроопт, продуктовые магазины, детский сад, общеобразовательная школа, школа искусств, библиотека, дом культуры, больница, станция скорой помощи, аптеки, рынок, очень много различных магазинов, авторемонтные мастерские, шиномонтаж, магазины автозапчастей, городская баня, парикмахерские, дом быта, банк, почта, ремонт одежды, БТИ и нотариус, а так же кафе и клуб, Столбцовское шикарное и красивейшее озеро. Недалеко Музейный комплекс поэта Я.Коласа, турбаза «Высокий берег», Несвижский замок Радзивилов и Музейный комплекс Замок Мир. Отличное предложение как для отдыха, так и для круглогодичного проживания! Звоните и приезжайте смотреть в любое удобное для вас время! Хороший выбор для тихой и спокойной жизни в городе, так и для сдачи квартиры в аренду. Организовываем показы с понедельника и до субботы. Покупая эту квартиру, вы будете уверены в безопасности и надежности сделки.
Лицензия: 02240/446 МЮ РБ, 11.07.2022
Параметры объекта
- Количество комнат
2
- Раздельных комнат
2
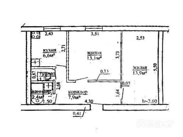
- Площадь общая
45.2 м²
- Площадь жилая
27 м²
- Площадь кухни
6.6 м²
- Год постройки
1984
- Этаж / этажность
3 / 4
- Тип дома
Кирпичный
- Ремонт
Нормальный
- Высота потолков
2.7 м
- Санузел
Раздельный
- Собственность
Частная
- Условия продажи
Чистая продажа
- Номер договора
37/1 от 18.01.2026
Фаттория
Контактное лицо
Примечание
Местоположение
- Область
- Район
- Населенный пункт
- Улица
- Номер дома
1
- Сельсовет
Заямновский с/с
- Направление
Брестское, 70 км от МКАД
- Координаты
53.5192, 26.72
