Купить 3-комнатную квартиру, г. Минск, пер. Зубачева 1-й, 13
337 876 р.
4 135 р.≈ 1 493 $ за м²
Чистая продажа
Следить за ценой
- г. Минскпер. Зубачева 1-й, 13
- Неморшанский сад (2024)
- 14 минут
- На карте
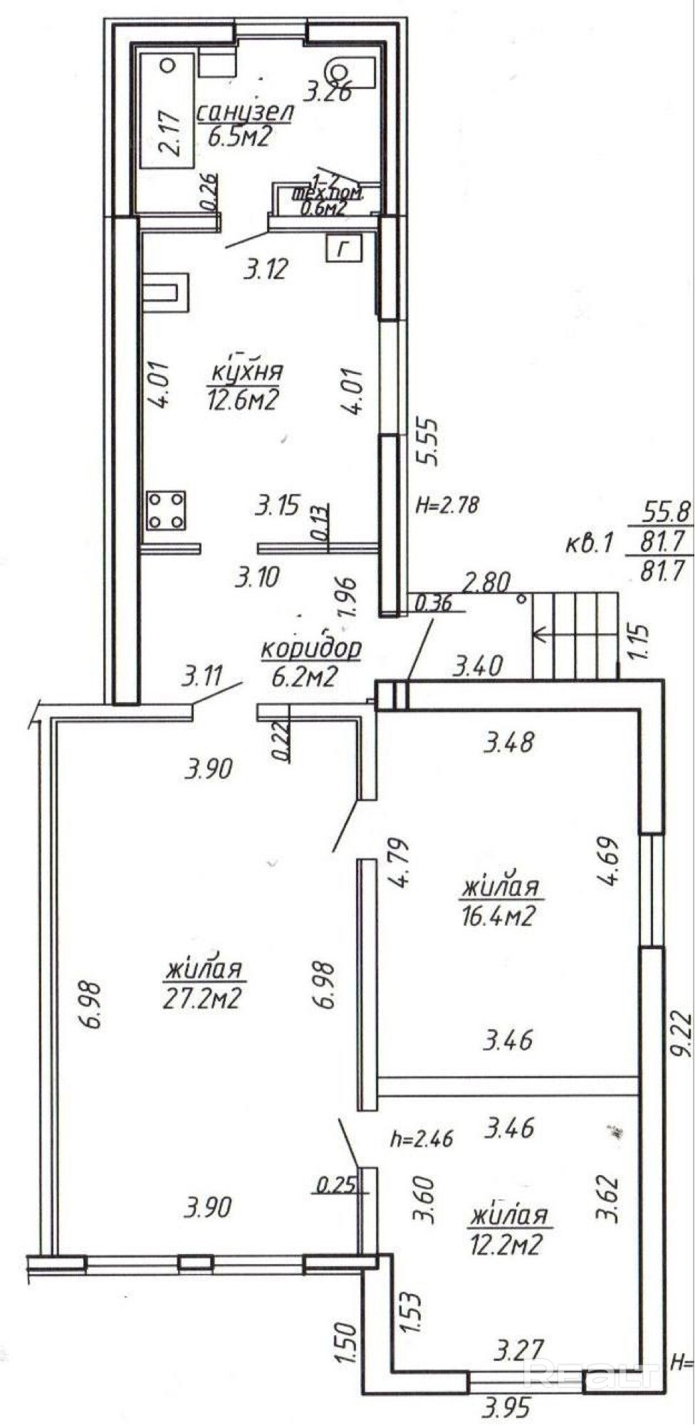
81.7 м²
Общая
55.8 м²
Жилая
1 из 1
Этаж
24.01.2026ID 4012062
Параметры объекта
- Количество комнат
3
- Раздельных комнат
2
- Площадь общая
81.7 м²
- Площадь жилая
55.8 м²
- Год постройки
1997
- Год капитального ремонта
2018
- Этаж / этажность
1 / 1
- Тип дома
Силикатные блоки
- Ремонт
Евроремонт
- Мебель
Есть
- Стоянка автомобиля
Есть
- Возможен торг
Да
- Собственность
Частная
- Условия продажи
Чистая продажа
Удобства
Телефонная сеть
Интернет
Продавец
Диана
Контактное лицо
Примечание
Квартира в 3-кв. жилом доме, большие комнаты, все центральные коммуникации, асфальтированный подъезд к дому, кухня новая с встроенной бытовой техникой, комнаты с мебелью, рядом парк "Курасовщина" и горнолыжный комплекс "Солнечная долина". До метро пешком 14 минут (1.3км), в шаговой доступности 3 д/с, школа N110 и гимназия, БСМП, загородная жизнь в самом Минске-это ваша реальность. Агентам убедительная просьба не звонить (разговор неожиданно обрывается)
Местоположение
Неморшанский сад (2024)14 минут
- Область
- Населенный пункт
- Улица
- Номер дома
13
- Район города
- Микрорайон
- Координаты
53.852600098, 27.524200439
