Скачать приложение Realt
Скачать

Продается видовая квартира евротрешка с большой открытой террасой

333 551 р.

118 000 $

5 212 р. 1 844 $ за м²

Чистая продажа
Следить за ценой
64 м²

Общая

51.8 м²

Жилая

2 из 21

Этаж

50 минут назадID 3971886
pdf
Обзор по новостройкам Минска и пригорода
Цены и наличие квартир, условия покупки и оплаты

Описание

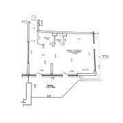
Продается видовая квартира евротрешка с большой открытой террасой и французкими балконами по наружному периметру квартиры в каркасно-блочном доме 2025г.п.

Площадь 64 м2 по СНБ свободной планировки в квартале Южная Америка ЖК Minsk World

Ул. Алферова дом 1 (Богота) на 2 этаже.

Просторное лобби с зоной консьержа, сквозные подъезды, пандусы.

Удобное месторасположение.

Преимущества комплекса:

Международный финансовый центр;

Большой торгово-развлекательный центр,

Магазины, кафе,

Школы, детские сады;

Поликлиники, аптеки;

И др. объекты культурно-бытового назначения.

Квартал расположен в восточной части застройки на пересечение 2-х линий метрополитена, 

рядом остановки общественного транспорта;

велодорожки и велополосы вдоль улиц;

парковки, стоянки для автомобилей, велопарковки.

Подарите себе уникальную возможность уже сейчас приобрести квартиру, которая будет соответствовать Вашим желаниям. Для чего бы Вы ее не купили: для проживания, для сдачи в аренду, как инвестиции – это идеальный вариант вложения средств)

Общая площадь указана по СНБ.

Параметры объекта

  • Количество комнат

    3

  • Раздельных комнат

    2

  • Площадь общая

    64 м²

  • Площадь жилая

    51.8 м²

  • Год постройки

    2025

  • Этаж / этажность

    2 / 21

  • Тип дома

    Каркасно-блочный

  • Планировка

    Свободная планировка

  • Балкон

    Балкон

  • Ремонт

    Без отделки

  • Высота потолков

    2.7 м

  • Санузел

    Раздельный

  • Стоянка автомобиля

    Есть

  • Собственность

    Частная

  • Условия продажи

    Чистая продажа

  • Номер договора

    1754/1 от 08.12.2025

Примечание

Площадь 64 м2 по СНБ свободной планировки в квартале Южная Америка ЖК Minsk World Ул. Алферова дом 1 (Богота) на 2 этаже. Просторное лобби с зоной консьержа, сквозные подъезды, пандусы. Удобное месторасположение.

Местоположение