Специальное предложение! Лучшая квартира 10 минут от метро Могилёвская!
361 036 р.
5 504 р.≈ 1 982 $ за м²
Общая
Жилая
Кухня
Этаж
Описание
- Квартира светлая в кирпичном доме 2004 г.п., в котором комфортно и зимой и летом;
- Квартира расположена на 2-ом этаже 9-ти этажного дома;
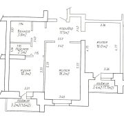
- Просторная функциональная квартира (по СНБ 65,6 м2), с отлично продуманной планировкой -
отличный вариант для семьи!
- Из большой кухни 10.3 м2 выходит лоджия, застекленная алюминиевым профилем;
- В кухне - электроплита;
- Просторная жилая комната 18,2 м2 позволяет рационально разместить мебель;
- В квартире установлены ст/пакеты ПВХ, на полу - ламинат, деревянные двери;
- Санузел: просторная ванная комната 3.8 м, туалет с умывальником;
- В большом коридоре 11.5 м2 вместительный встроенный шкаф-купе, металлическая дверь;
- Идеальный вариант для сдачи и жизни!
шкаф-купе, шкафы на кухне, электроплита.
- Тамбур на две квартиры;
- Адекватные соседи;
- Нет проблем с парковкой!
Чистая продажа.
Месторасположение & локация:
Идеальное расположение дома для комфортного проживания.
В шаговой доступности детский сад, школа № 172, Белпочта, Детская Стоматология, Евроопт,
магазин "Охотский", Мини-кафе, Беларусбанк, остановка общественного транспорта,
детская площадка, большая парковка недалеко от дома.
Отличное транспортное сообщение: до ст.м. "Тракторный завод" 15 минут на автобусе № 106,
до ст.м. "Академия Наук" на скоростном автобусе № 20С приблизительно столько же.
Отличное и спокойное место для жизни!
Параметры объекта
- Количество комнат
2
- Раздельных комнат
2
- Площадь общая
65.6 м²
- Площадь жилая
34.2 м²
- Площадь кухни
10.3 м²
- Год постройки
2004
- Этаж / этажность
2 / 9
- Тип дома
Кирпичный
- Балкон
Лоджия
- Ремонт
Хороший
- Высота потолков
2.5 м
- Мебель
Есть
- Санузел
Раздельный
- Собственность
Частная
- Условия продажи
Чистая продажа
- Номер договора
416/3 от 13.11.2025
Удобства
Телефонная сеть
Интернет
Лифт
Видеонаблюдение
Примечание
Местоположение
- Область
- Населенный пункт
- Улица
- Номер дома
145
- Район города
- Микрорайон
- Координаты
53.8836, 27.664
