Дача в СТ ''Птичь-Пегасово''
73 653 р.
Тип
Участок
Общая
Жилая
Описание
Продается дача в СТ "Птичь-Пегасово".
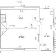
Общая площадь дома 103,8 кв.м., жилая 46 кв.м. Дом построен из кирпича, крыша покрыта натуральной черепицей.
Цокольный этаж с гаражом, душем (установлен бойлер для подогрева воды) и подсобным помещением для хранения. Два жилых этажа. На первом этаже просторная веранда/кухня (вода введена), проходная комната с печкой и большая жилая комната с камином. Второй этаж мансардный. Санузел на улице.
Участок ровный и ухоженный. Квадратной формы. Уютный сад с газонной травой, деревьями и цветниками.
До дачи ведут отличные подъездные пути, асфальтированная дорога и небольшой участок гравийной дороги. В зимний период дороги чистят.
Дом находится в 15 км от г. Минска. От ст.м. Каменная горка ходит общественный транспорт (автобусы 384С, 450С, 860С, 885С) и маршрутное такси. Остановка «Гаище-1». От остановки до дачи 18 минут пешком (1.5 км).
Замечательный вариант для комфортного жилья в тихом месте рядом с лесом и вблизи г. Минска.
Параметры объекта
- Тип объекта
Дача
- Площадь участка
6 соток
- Площадь общая
103.8 м²
- Площадь жилая
46 м²
- Площадь кухни
12.8 м²
- Уровней в доме
3
- Год постройки
1995
- Отопление
Печное
- Электроснабжение
Есть
- Вода
Центральный водопровод
- Гараж
Есть
- Статус земли
Частная собственность
- Условия продажи
Чистая продажа
- Номер договора
4/1 от 09.02.2026
Инфраструктура
Рядом лес
Примечание
Местоположение
- Область
- Район
- Населенный пункт
- Сельсовет
Хатежинский с/с
- Координаты
53.866402, 27.236003
