Предлагаем к продаже уютный дачный домик в СТ МИНСКИЙ ВОДНИК, Логойский район
61 727 р.
Тип
Участок
Общая
Жилая
Описание
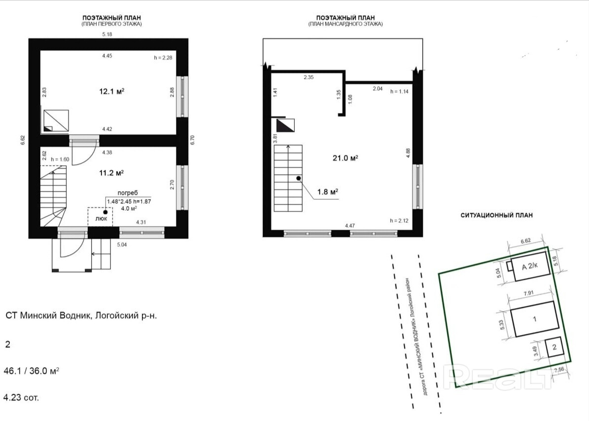
•В тихом и живописном месте продается аккуратный 2-х этажный дачный домик общей площадью 46,1 кв.м., расположенный на ровном участке, площадью 4,23 сотки.
Дом с 2-мя комфортными спальнями и кухней-гостиной очень тёплый, готов для круглогодичного проживания. Имеется камин и погреб.
•В отдельной благоустроенной постройке с печным отоплением расположен бойлер, душевая, туалет. Также на участке имеется хозяйственное помещение для хранения инструментов и другого инвентаря.
•Участок ровный, по периметру огорожен металлическим забором + сетка-рабица. Имеются плодовые деревья и кусты.
•Удобный Асфальтированный подъезд. В шаговой доступности остановка общественного транспорта.
•Расстояние до МКАД составляет 22 км. и 8 км. до Острошицкого Городка
Параметры объекта
- Тип объекта
Дача
- Площадь участка
4.23 сотки
- Площадь общая
46.1 м²
- Площадь жилая
36 м²
- Уровней в доме
2
- Год постройки
2024
- Материал стен
Кирпичный
- Материал крыши
Металл
- Отопление
Печное
- Газ
Баллон
- Канализация
Местная
- Электроснабжение
Есть
- Вода
Скважина
- Статус земли
Пожизненно наследуемое владение
- Условия продажи
Чистая продажа
- Номер договора
118/1 от 09.12.2025
Елизавета
Контактное лицо
Примечание
Местоположение
- Область
- Район
- Населенный пункт
- Сельсовет
Острошицкий с/с
- Координаты
54.121693, 27.719099
