Комфортных полдома возле Вилейского водохранилища
42 099 р.
Тип
Участок
Общая
Жилая
Описание
Комфортных половина жилого дома в живописном месте возле Вилейского водохранилища
❤️Крепкий дом 1974 г.п. с не большим участком - отличный вариант как для дачи так и для круглогодичного проживания.
Адрес: аг. Кривое Село, ул. Первомайская
- В агрогородке есть почта, дом культуры, фельдшерский пункт, магазины.
- Кирпичный дом со всеми центральными коммуникациями, шиферной крышей расположен на участке 7,8 соток.
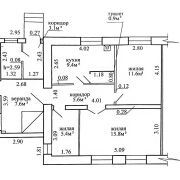
- Общая площадь дома составляет 56,3 м2, жилая площадь - 32,8 м2, площадь кухни – 9,4 м2.
- Отопление газовый двухконтурный котёл, который греет и дом и воду.
- В дом подведена центральная вода; полы деревянные, местами линолеум ; окна деревянные и ПВХ.
- Канализация центральная, подведена на кухню и санузел, который находится в доме.
- Территория участка огорожена забором.
- К дому проведено оптоволокно, подключен интернет.
- На участке расположен прекрасный сад, который будут радовать вас своим урожаем. В Вашем распоряжении будет банька, хоз. постройки.
- Дом расположен в агрогородке Кривое Село. В 500 метрах от дома леc, где можно не только совершать прогулки, а так же собирать грибы и ягоды. В шаговой доступности есть продуктовый магазин, амбулатория, сельсовет, почта.
- Остановка общественного транспорта расположена недалеко от дома.
- В 3,5 километрах находится Вилейское водохранилище. Прекрасное место для отдыха с семьей и друзьями. На Вилейском водохранилище расположено несколько кемпингов для отдыха, что сделает Ваш отдых намного комфортнее.
- В доме остаётся всё что есть на фотографиях.
❤️ Мы с радостью покажем Вам этот объект и сделаем Вас его счастливыми хозяевами!
А также хотите:
- выгодно продать
- срочно выкупить
- найти лучшую квартиру
- заработать на инвестициях в недвижимость
- сделать дизайнерский ремонт
Тогда «Моя 7Я» решит это, как для своей семьи: с любовью, заботой и желаемым результатом!
Агентство недвижимости ООО «Центр международной недвижимости Моя 7Я»
УНП 193750826
Лицензия: № 02240/484 выдана МЮ РБ 18.05.2024 г.
Страховое свидетельство БР 0004860
Параметры объекта
- Тип объекта
Полдома
- Площадь участка
7.5 соток
- Площадь общая
56.3 м²
- Площадь жилая
32.8 м²
- Площадь кухни
9.4 м²
- Уровней в доме
1
- Год постройки
1974
- Процент готовности
100
- Материал стен
Кирпичный
- Материал крыши
Шифер
- Отопление
На газу
- Газ
Есть
- Канализация
Центральная
- Электроснабжение
Есть
- Вода
Центральный водопровод
- Баня
Есть
- Статус земли
Пожизненно наследуемое владение
- Условия продажи
Чистая продажа
- Номер договора
298/4 от 12.06.2025
Инфраструктура
Сад
Рядом лес
Водоем
Хозпостройки
Центр международной недвижимости Моя 7Я
Контактное лицо
Примечание
Местоположение
- Область
- Район
- Населенный пункт
- Улица
- Сельсовет
Рабунский с/с
- Направление
Молодечненское, 68.4 км от МКАД
- Координаты
54.523566975, 27.049059113
