Купить дом, д. Воловники, ул. Центральная, 32/а (Дзержинский р-н, Минская область)
229 270 р.
Чистая продажа
Следить за ценой
Дом
Тип
25 сот
Участок
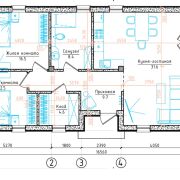
91.2 м²
Общая
81.8 м²
Жилая
01.04.2026ID 4053068
Параметры объекта
- Тип объекта
Дом
- Площадь участка
25 соток
- Площадь общая
91.2 м²
- Площадь жилая
81.8 м²
- Год постройки
2025
- Процент готовности
80
- Ремонт
Не достроен
- Статус земли
Частная собственность
- Возможен торг
Да
- Условия продажи
Чистая продажа
Продавец
Дмитрий
Контактное лицо
Примечание
Дом в живой деревне в 25 минутах от города. Большой участок. Красивая природа, ручей на границе участка. Качественные материалы и монтаж. Надежные инженерные решения. Свободная планировка. ПОд чистовую оотделку
Местоположение
- Область
- Район
- Населенный пункт
- Улица
- Номер дома
32/а
- Сельсовет
Путчинский с/с
- Направление
Брестское, 38 км от МКАД
- Координаты
53.771213581, 27.003032284
