Продается премиальный таунхаус в 15 минутах от Минска в 5 минутах от ГСК “Логойск”
775 115 р.
Тип
Участок
Общая
Жилая
Описание
Предлагаем готовое пространство для жизни с идеальным балансом приватности, комфорта и развитой инфраструктуры. Дом расположен в охраняемом поселке на возвышенности, со всех сторон окруженный лесом.
Концепция: Городской комфорт + загородная экология + высокое качество отделки.
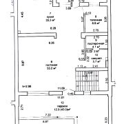
Характеристики и планировка (общая площадь 261.6м2/жилая 133.3 м2):
· Цокольный этаж: Отапливаемый гараж площадью 23.8 м2, просторная прихожая-холл и отдельный кабинет (идеально для работы или хобби).
· 1-й этаж: Объединенное пространство кухни-гостиной 33.3 и 53.3 м2 соответственно, полностью укомплектовано всем необходимым. Интерьер в стиле лофт, с открытой кирпичной кладкой в сочетании с глубоким синим цветом фасадов кухни и обивки дивана на фоне молочных стен создает ощущения воздуха и свежести. Выход из гостинной на большую открытую террасу с видом на лес и собственный участок. Просторная гостиная с огромным диваном. Гостевой санузел, постирочная и техническое помещение.
· 2-й этаж (Приватная зона):
· Просторная мастер-спальня с большим окном с широким подоконником, площадью 18.3 м2. Индивидуальный санузел и гардеробная.
· Детская комната 18.7 м2.
· Гостевая комната 23.2 м2.
· Дополнительный санузел.
Особенности и преимущества:
· Комплектация «Под ключ»: Дом полностью укомплектован мебелью премиум-класса и встроенной техникой Bosch. Никаких дополнительных вложений.
· Качество отделки: Полы (паркет/керамогранит) с подогревом, высота потолков от 3.0 до 3.8 м, двухкамерные немецкие стеклопакеты.
· Участок: Территория огорожена 5.05 соток, достаточно просторная для строительства бани с бассейном и обустройства ландшафта.
· Коммуникации: Центральное водоснабжение (артезианская скважина) и центральная канализация.
· Локация: Асфальтированные подъездные пути, до Минска — 20 минут на авто.
· Безопасность: Круглосуточная охрана и видеонаблюдение по периметру поселка.
· Социальная среда: Сложившийся коллектив культурных и доброжелательных соседей.
Инфраструктура в пешей доступности (5 мин):
ГСК «Логойск» (лыжная трасса, веревочный городок, пейнтбол, ресторан, сауны, конные прогулки, рыбалка, детский развлекательный центр).
Идеальный вариант для семьи, ценящей уединение, качество и комфорт.
И теперь самое интересное - цена!!!
Всего 900 дол. за квадратный метр! Вы только вдумайтесь в эти цифры…
🌲 302 метра вашего личного пространства в окружении леса. Это не просто таунхаус, это настоящий дом для души.
🌲 Полную готовность. Премиальная мебель и техника Bosch уже ждут вас. Паркет, теплые полы, потолки от 3.0 до 3.8 метра — здесь можно жить с первого дня.
🌲 Закрытый поселок. Охрана, видеонаблюдение, асфальт — ваш островок безопасности посреди леса.
🌲 Природа за каждым окном. Поселок на возвышенности, а вокруг — только лес. Воздух, от которого кружится голова.
🌲 Активная жизнь в 5 минутах. Горнолыжный комплекс «Логойск» с подъемниками и трассами — ваш личный фитнес-клуб под открытым небом.
Звоните прямо сейчас, чтобы узнать подробности и записаться на просмотр в удобное для вас время!
Поможем продать Вашу недвижимость.
Договор № 96/1 от 23.02.2026 г.
ООО Агентство недвижимости «Метриум»
УНП 193581536
Лицензия № 02240/425, выдана Министерством Юстиции РБ 27.08.2021
Параметры объекта
- Тип объекта
Таунхаус
- Площадь участка
5.05 соток
- Площадь общая
261.6 м²
- Площадь жилая
133.6 м²
- Площадь кухни
33.3 м²
- Уровней в доме
2
- Год постройки
2018
- Процент готовности
100
- Материал стен
Кирпичный
- Материал крыши
Черепица
- Отопление
Электрическое
- Газ
Есть
- Канализация
Центральная
- Электроснабжение
Есть
- Вода
Центральный водопровод
- Статус земли
Частная собственность
- Условия продажи
Чистая продажа
- Номер договора
96/1 от 22.02.2026
Татьяна Лисовская
Агент по недвижимости
Примечание
Местоположение
- Область
- Район
- Населенный пункт
- Улица
- Сельсовет
Логойский с/с
- Направление
Логойское, 30 км от МКАД
- Координаты
54.178301, 27.816153
