Купить дом, д. Слобода, ул. Минская, 4 (Минский р-н, Минская область)
782 316 р.
Чистая продажа
Следить за ценой
Дом
Тип
13.88 сот
Участок
289 м²
Общая
130 м²
Жилая
02.04.2026ID 4033929
Параметры объекта
- Тип объекта
Дом
- Площадь участка
13.88 соток
- Площадь общая
289 м²
- Площадь жилая
130 м²
- Площадь кухни
14 м²
- Год постройки
2015
- Процент готовности
100
- Материал крыши
Черепица
- Мебель
Есть
- Отопление
На газу
- Газ
Есть
- Канализация
Местная
- Электроснабжение
Есть
- Вода
Скважина
- Гараж
Есть
- Статус земли
Частная собственность
- Условия продажи
Чистая продажа
Инфраструктура
Теплица
Рядом лес
Сад
Хозпостройки
Продавец
Василий
Контактное лицо
Примечание
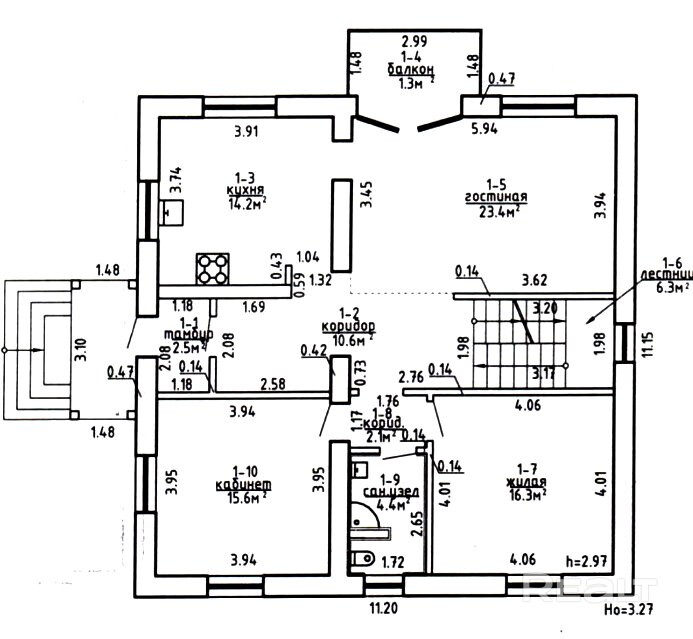
Дом 289 м.кв, баня 24м.кв + терасса 14м и гараж 6х6м в двух уровнях. Общая площадь застройки 400 м. В доме 4 спальни, кабинет, гостиная, кухня 14 м, три с/узла, топочная, кладовки и т.п. Есть возможность поэтажного деления дома на два обособленных сегмента с отдельными входами и въездами на участок, две отдельные парковки на 2 и 3 машины, у каждой свой въезд, ворота по 4,2 м. Электро ввод 3 фазы 10 Квт. Газовый котёл BOSCH, водяные тёплые полы. Звоните, приезжайте, смотрите! Продаю свой дом сам.
Местоположение
- Область
- Район
- Населенный пункт
- Улица
- Номер дома
4
- Сельсовет
Самохваловичский с/с
- Направление
Слуцкое, 10 км от МКАД
- Координаты
53.754172, 27.505749
