Дом в городе Логойск
148 332 р.
Тип
Участок
Общая
Жилая
Описание
Одноэтажный жилой дом в Логойске, 1969 года построения, на аккуратном, ровном участке 8,24 сотки, статус земли - пожизненно наследуемое владение. 30 км от Минска по скоростной трассе.
Адрес: Логойск, ул. Промышленная
Планировка дома:
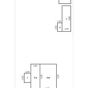
Дом в 1 этаж. Внешние размеры: 9,45 м * 9,39 м.
Общая площадь со всеми подсобными помещениями (по СНБ) 75,3 кв.м., общая жилая площадь 68,3 кв.м., площадь жилых комнат 43,6 кв.м.
Дом представлен: 4 раздельные жилые комнаты 9,8 / 14,3 / 7,9 / 12,6 кв.м.; кухня 8,5 кв.м.; ванная комната 6,2 кв.м. (без сан.узла в данный момент; достаточно места, чтобы установить унитаз. Размеры комнаты 2,91 м*2,27 м); крыльцо 7,0 кв.м.
Высота потолков 2,60 /2,73.
Характеристика строения, коммуникации:
Фундамент - ленточный. Стены - типовой щитовой утепленный дом, спроектирован по ГОСТу + кирпичная кладка.
Кровля утеплена по потолку 1 этажа, гидроизолирована рубероидом, уложен шифер.
По всему дому установлены деревянные двойные рамы.
Пол дощатый.
Установлены радиаторы.
Коммуникации: электричество 220, заведено оптоволокно; отопление – природный газ, установлен одноконтурный газовый котел на нагрев воды и отдельно - газовая колонка на отопление дома. Имеется дровяная печь. Водоснабжение центральное; местная канализация (систематически откачивается).
Участок:
Участок 8,24 соток (ширина 20,5 м *длина 40 м), статус - пожизненно наследуемое владение, огорожен по периметру, установлены распашные ворота для заезда машины на территорию участка.
На участке, кроме жилого дома, выстроены: хозблок из газосиликата и кирпича и уличный туалет (выгребная яма).
Территория участка абсолютно ровная, без перепадов, высажен взрослый плодоносящий сад.
Асфальтированные подъездные пути перед домом.
Вся инфраструктура города в шаговой доступности:
10 мин. до Гимназии, детского сада.
9 мин. до ближайшего магазина Копеечка и др.
14 мин. до районной больницы.
4 мин. до рынка.
Остановка в 2 минутах ходьбы - можно быстро добраться до центра города и автовокзала.
Не упустите шанс приобрести этот дом!
Жилой, теплый, по - простому уютный, готов к заезду и проживанию, постоянно отапливается!
Звоните и записывайтесь на просмотр!
Поможем продать Вашу недвижимость для покупки этой!
Гарантия безопасности сделки и полное юридическое сопровождение!
Параметры объекта
- Тип объекта
Дом
- Площадь участка
8.24 соток
- Площадь общая
75.3 м²
- Площадь жилая
43.6 м²
- Площадь кухни
8.5 м²
- Уровней в доме
1
- Год постройки
1969
- Процент готовности
100
- Материал стен
Кирпичный
- Материал крыши
Шифер
- Мебель
Есть
- Отопление
На газу
- Газ
Есть
- Канализация
Местная
- Электроснабжение
Есть
- Вода
Центральный водопровод
- Статус земли
Пожизненно наследуемое владение
- Условия продажи
Чистая продажа
- Номер договора
404/1 от 28.09.2025
Инфраструктура
Сад
Хозпостройки
Наталья Гапутина
Агент по недвижимости
Примечание
Местоположение
- Область
- Район
- Населенный пункт
- Улица
- Номер дома
5
- Направление
Логойское, 30.9 км от МКАД
- Координаты
54.215101703, 27.849920063
