Участок с домом в а.г. Ждановичи
199 084 р.
Тип
Участок
Общая
Жилая
Описание
Участок 9 соток в аг. Ждановичи. Шикарное место на берегу Минского моря. Можно поставить новый дом
Продается участок 9 соток в аг. Ждановичи со старым бревенчатым домом. В доме три комнаты. Есть погреб. Отопление печное. В доме много лет никто не жил.
Участок возле дома имеет правильную форму, ровный. Газ проведен до дома, вода- колодец.
Участок расположен в шикарном месте- до берега Минского моря меньше 300 метров! Рядом санаторий « Криница».
Кругом красота: устроены места отдыха вдоль берега, сосновый лес. Рядом находятся санатории и оздоровительные центры.
В агрогородке Ждановичи имеется вся необходимая инфраструктура для современной жизни. Здесь много магазинов, школа, детский садик, рынок Ждановичи. Словом, городской комфорт загородной жизни в пяти километрах от столицы.
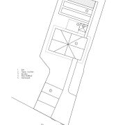
Дом в Ждановичах - это перспективное место, отличная финансовая инвестиция! У вас есть отличная возможность построить на участке новый современный дом! На фото представлен возможный план застройки участка.
Торг.
Звоните! Приезжайте, покупайте!
Лицензия: №02240/362 от 31.07.2018, Министерство юстиции РБ
Параметры объекта
- Тип объекта
Дом
- Площадь участка
8.9 соток
- Площадь общая
43.3 м²
- Площадь жилая
25 м²
- Процент готовности
100
- Материал стен
Бревенчатый
- Материал крыши
Шифер
- Отопление
Печное
- Газ
Нет
- Канализация
Нет
- Электроснабжение
Есть
- Вода
Нет
- Статус земли
Пожизненно наследуемое владение
- Условия продажи
Чистая продажа
- Номер договора
1417/1 от 25.09.2025
Примечание
Местоположение
- Область
- Район
- Населенный пункт
- Улица
- Сельсовет
Ждановичский с/с
- Направление
Молодечненское, 1 км от МКАД
- Координаты
53.951649, 27.415918
