Купить дом, д. Баранцы (Вилейский р-н, Минская область)
140 200 р.
Чистая продажа
Следить за ценой
Дом
Тип
15 сот
Участок
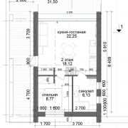
78 м²
Общая
50 м²
Жилая
30.03.2026ID 3783698
Параметры объекта
- Тип объекта
Дом
- Площадь участка
15 соток
- Площадь общая
78 м²
- Площадь жилая
50 м²
- Год постройки
2025
- Процент готовности
50
- Ремонт
Не достроен
- Статус земли
Пожизненно наследуемое владение
- Возможен торг
Да
- Условия продажи
Чистая продажа
Инфраструктура
Рядом лес
Продавец
Андрей
Контактное лицо
Примечание
Хороший вариант под гостевой дом или дачу. Ровный прямоугольный участок, без соседей по бокам, в поле. На участке дом 5,4х8,4м. Свайно-ростверковый монолитный фундамент 400мм ширина. Стены из керамзитобетона 400мм термокомфорт. Крыша двухскатная клик-фальц, металлопрофиль. Окна тёплый алюминий от Алютеха. В дом заведены: 1. Газ 2. Вода/канализация 3. Электричесвто В доме металлическая лестница на 2 этаж. Рядом с деревней новая круглосуточная заправка(ночник), в 7км Вилейка и пляж.
Местоположение
- Область
- Район
- Населенный пункт
- Сельсовет
Осиповичский с/с
- Направление
Молодечненское, 70.5 км от МКАД
- Координаты
54.46817735, 26.820343771
