Продается просторный дом в 12 км от МКАД
408 697 р.
Тип
Участок
Общая
Жилая
Описание
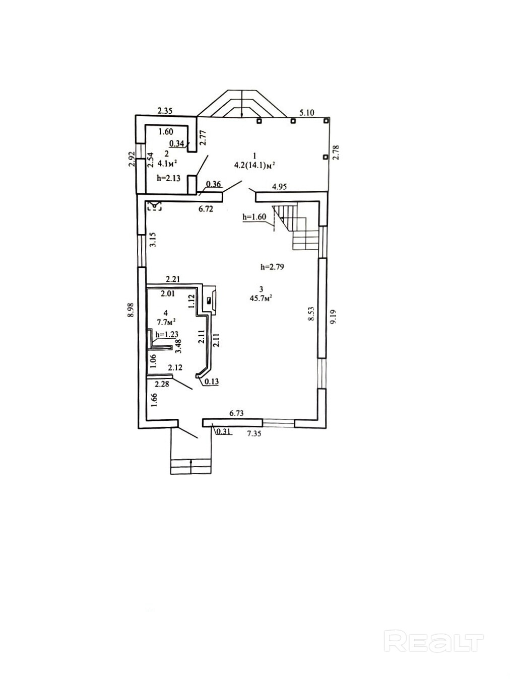
Продается дом в престижном месте недалеко от Минска в СТ " Ветеран войны" , расположенном между п.Городище и д.Юхновка.
Дом блочный двухуровневый , с небольшой уютной террасой . Участок 6.69 соток ровной формы с хоз.постройкой.
Первый этаж требует небольшого ремонта , второй этаж полностью готов для проживания.
Вся мебель остается будущим владельцам.
Отличное расположение СТ , до ст.м.Уручье 10 минут на автомобиле . Рядом с домом есть остановка общественного транспорта.
Вся необходимая инфраструктура также располагается недалеко , магазины , кафе , амбулатория.
Звоните, организуем показ в удобное для Вас время!
Окажем помощь в продаже Вашего объекта недвижимости для приобретения данного дома.
Параметры объекта
- Тип объекта
Дом
- Площадь участка
6.69 соток
- Площадь общая
119.4 м²
- Площадь жилая
70 м²
- Уровней в доме
2
- Год постройки
2009
- Процент готовности
90
- Материал стен
Силикатные блоки
- Материал крыши
Черепица
- Отопление
На газу
- Газ
Есть
- Канализация
Местная
- Электроснабжение
Есть
- Статус земли
Частная собственность
- Условия продажи
Чистая продажа
- Номер договора
23/1 от 19.03.2026
Инфраструктура
Водоем
Рядом лес
Хозпостройки
Примечание
Местоположение
- Область
- Район
- Населенный пункт
- Номер дома
100
- Сельсовет
Колодищанский с/с
- Направление
Московское, 18 км от МКАД
- Координаты
53.974944599, 27.834284976
