Аренда производственно-складского здания в р-не МКАД (р-н д. Цна)
20 - 25 р./м²
Тип
Площадь
Этаж
Описание
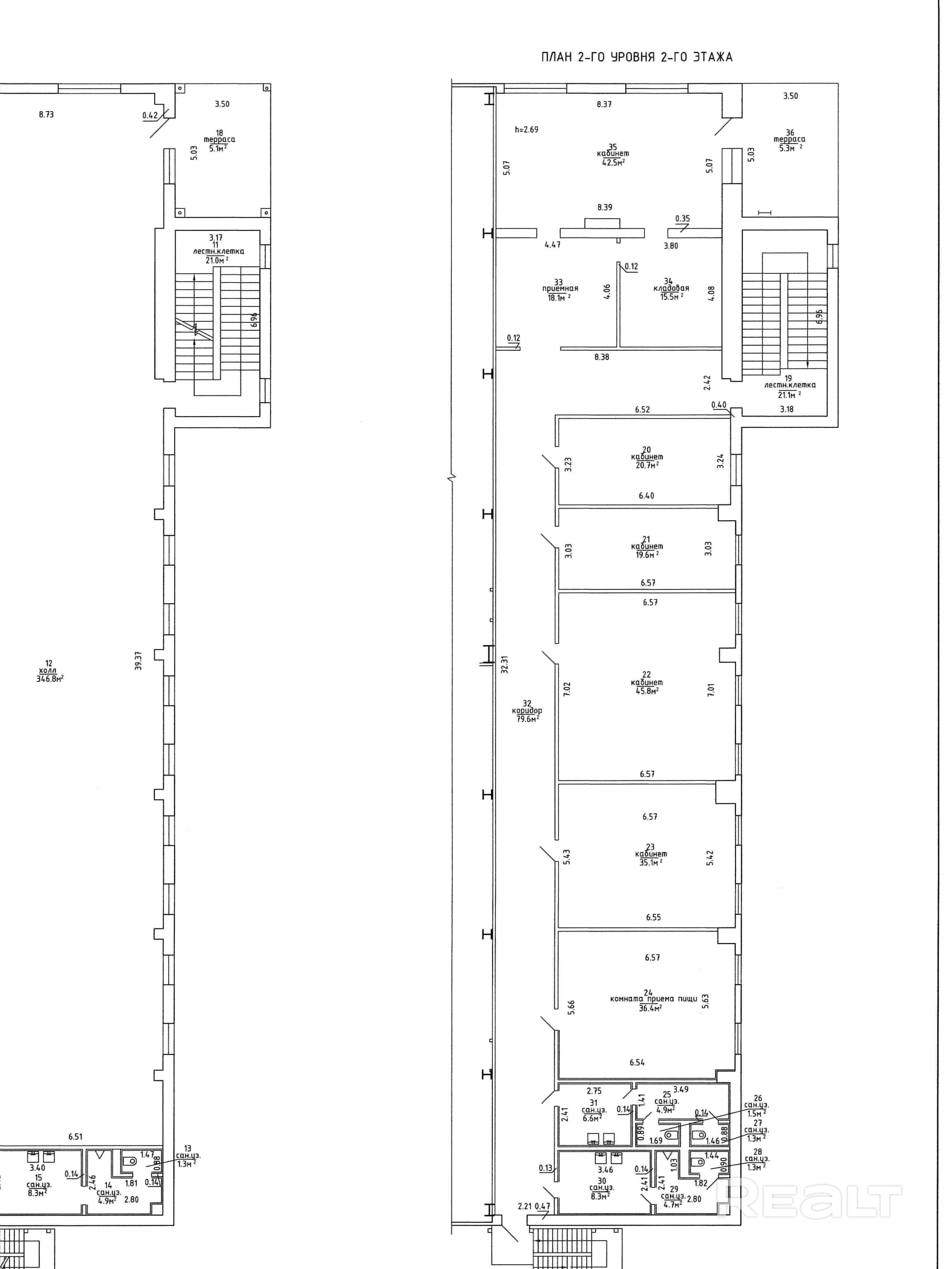
Здание имеет два этажа с производственно-складскими помещениями, а так же офисные помещения, расположенные на втором уровне второго этажа. Есть две рампы, два грузовых подъемника (грузоподъемность каждого 3 т). Водоснабжение, канализация, теплоснабжение от собственной котельной. Электроснабжение осуществляется от двух КТП мощностью по 250 кВА каждая. Хорошие подъездные пути. До базы проложена асфальтированная дорога. Рядом трасса Колодищи-Заславль и МКАД. Возможность увеличения арендуемых площадей до 7 500 м2 за счет находящихся рядом двух строений ангарного типа по 980 м2 и производственного здания площадью 450 м2. Так же на территории имеются инвентарные навесы для хранения. Аренда с 01.06.2026 года.
Параметры объекта
- Тип объекта
Склад
- Площадь участка
60 соток
- Площадь общая
4998 м²
- Этаж / этажность
1 / 2
- Год постройки
2014
- Класс
B
- Раздельных помещений
5 - 15
- Материал стен
Панельный
- Высота потолков
4 м
- Ремонт
Хороший
- Отопление
Есть
- Электроснабжение
380В
- Естественное освещение
Есть
- Вода
Есть
- Санузел
Есть
- Принадлежность объекта
Частная
- НДС
НДС не включен
- Юридический адрес
Да
Арендодатель
Жанна
Контактное лицо
Примечание
Местоположение
- Область
- Населенный пункт
- Улица
Д. Цна
- Координаты
53.987117165, 27.579029138
