Снять склад, г. Минск, ул. Кульман, 1/11
14 р./м²
- г. Минскул. Кульман, 1/11
- Площадь Якуба Коласа
- На карте
Тип
Площадь
Этаж
Описание
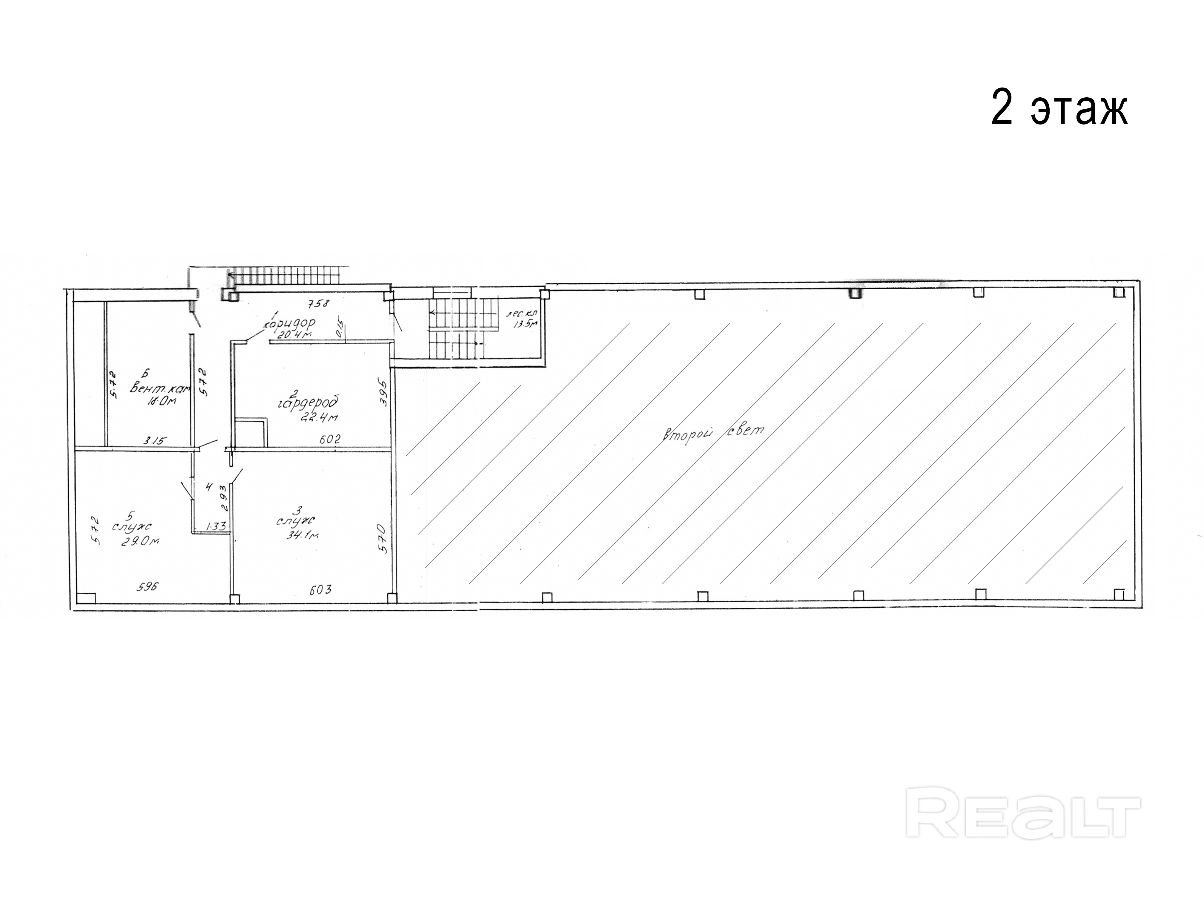
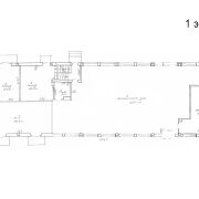
Аренда отдельно стоящего здания, площадью 805 кв.м. Площадь земельного участка 0.0884 га, целевое назначение - "для обслуживания здания неустановленного назначения".
Площадь:
1 этаж: 438,9 м2; 2 этаж: 156,4 м2; подвал: 209,7 м2.
Электрические сети и водоснабжение в здание не заведено, помещение не отапливаемое.
Запас электрической мощности 1 мВт, высота потолков 9 метров.
Парковка:
Вблизи здания имеется возможность арендовать машиноместа.
Транспортное сообщение:
До станции метро "Якуба Коласа" 5 минут ходьбы. Более десяти маршрутов городского транспорта курсирует в шаговой доступности от здания. Также, здание располагается в пределах 1-го транспортного кольца.
Result Estate — ваш надёжный партнёр на рынке недвижимости.
20 лет опыта наших агентов по недвижимости — это ваш ключ к идеальной сделке: глубокое знание рынка, эксклюзивные предложения, юридическая безопасность и индивидуальный подход. Мы экономим ваше время, деньги и нервы, помогая купить, продать недвижимость быстро, выгодно и с уверенностью в результате!
Все актуальные предложения в одном месте — смотрите на нашем сайте.
Опишите свои пожелания — и мы оперативно подберем для вас лучшие варианты!
ООО «Результативная недвижимость», лицензия выдана Минюстом 26.09.2023 № 02240470, УНП 193703497
Связываясь с нами по данному объекту, Вы даете свое согласие на сбор и обработку персональных данных автоматически.
Параметры объекта
- Тип объекта
Склад
- Площадь общая
805 м²
- Этаж
1
- Принадлежность объекта
Частная
- НДС
НДС включен
- Номер договора
115/1а от 14.08.2024
Павел Винников
Агент по недвижимости
Примечание
Местоположение
- Область
- Населенный пункт
- Улица
- Номер дома
1/11
- Район города
- Координаты
53.9189, 27.5828
