Снять торговое помещение, г. Минск, ул. Притыцкого, 146
49 р./м²
- г. Минскул. Притыцкого, 146
- Каменная горка
- На карте
Тип
Площадь
Этаж
Описание
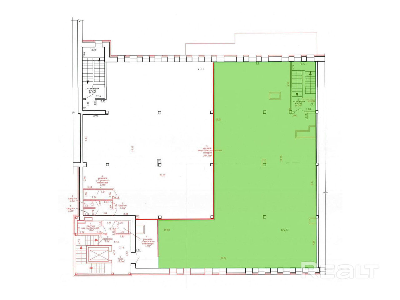
Аренда торгового помещения 336 м2 на втором этаже, по адресу: ул. Притыцкого, 146
Торговое помещение расположено втором этаже отдельно стоящего административного здания.
Общая площадь - 336 м2
Площадь помещения - 303 м2
Площадь лестничного пролёта для погрузки-разгрузки 33 м2
- Доступ 24/7
- Приточно - вытяжная система вентиляции
- Лифт на 2ой этаж
- Зона разгрузки с обратной стороны здания
- Возможность размещения большой вывески на фасаде здания
Привлекательное расположение рядом с метро и ТЦ "Green City" с высоким пешеходным и автомобильным трафиком делает этот объект отличным выбором для вашего бизнеса!
Преимущества локации:
- Метро «Каменная горка» в пешей доступности;
- Удобный подъезд и парковка рядом с зданием;
- Остановки общественного транспорта рядом с объектом;
- Окружение коммерческих площадей формата Street Retail (магазины, аптеки, рестораны, кофейни).
Параметры и возможности помещения:
- Возможность зонирования: помещение можно разделить на необходимые изолированные секции.
- Полный доступ: круглосуточный доступ к объекту 24/7.
- Коммуникации: электроснабжение, отопление, пожарная сигнализация, высокоскоростной интернет, современная система приточно-вытяжной вентиляции.
- Удобства: лифт на второй этаж, удобные подъездные пути для клиентов и сотрудников, рампа для погрузки разгрузки с обратной стороны здания.
Result Estate — ваш надёжный партнёр на рынке недвижимости.
20 лет опыта наших агентов по недвижимости — это ваш ключ к идеальной сделке: глубокое знание рынка, эксклюзивные предложения, юридическая безопасность и индивидуальный подход. Мы экономим ваше время, деньги и нервы, помогая купить, продать недвижимость быстро, выгодно и с уверенностью в результате!
Все актуальные предложения в одном месте — смотрите на нашем сайте.
Опишите свои пожелания — и мы оперативно подберем для вас лучшие варианты!
ООО «Результативная недвижимость», лицензия выдана Минюстом 26.09.2023 № 02240470, УНП 193703497
Связываясь с нами по данному объекту, Вы даете свое согласие на сбор и обработку персональных данных автоматически.
Параметры объекта
- Тип объекта
Торговое помещение
- Площадь общая
336 м²
- Этаж
2
- Отопление
Есть
- Электроснабжение
Есть
- Естественное освещение
Есть
- Принадлежность объекта
Частная
- НДС
НДС нет (0%)
- Номер договора
151/1a от 20.10.2024
Степан Аваков
Агент по недвижимости
Примечание
Местоположение
- Область
- Населенный пункт
- Улица
- Номер дома
146
- Район города
- Микрорайон
- Координаты
53.9076, 27.4373
