Аренда торгового помещения 1274,5 м² напротив ТЦ «Корона»
35 р./м²
- г. Минскул. Маяковского, 146
- Ковальская Слобода
- На карте
Тип
Площадь
Этаж
Описание
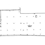
Аренда крупноформатного торгового помещения общей площадью 1274,5 м2. Объект расположен в активной торговой локации напротив торгового центра «Корона», что формирует стабильный покупательский поток и узнаваемость места.
Пространство открытого типа с колоннами. Ранее помещение использовалось под крупный розничный формат (сегмент бытовой техники), что подтверждает адаптацию под нагрузку, логистику и поток покупателей.
Технические и функциональные характеристики:
- Просторный торговый зал и естественное освещение
- Грузовой лифт (расположен с тыльной стороны здания, доступ для поставок) + зона разгрузки.
- Административные и подсобные помещения
- Возможность организации складской зоны
Объект ориентирован на арендатора с долгосрочными планами. Формат подходит для федеральных и региональных сетей, дистрибуции, специализированной торговли и крупного ритейла.
Расположение напротив ТЦ «Корона» усиливает трафик за счёт сформированного торгового узла. Помещение с готовой инфраструктурой под крупный бизнес и возможностью быстрого запуска.
Больше объявлений тут: www.instagram.com/garant.arenda
Напишите нам в удобный для Вас мессенджер:
Viber | Telegram | WhatsApp
Ответим на Ваши вопросы, предоставим всю необходимую дополнительную информацию.
ООО «Артель Недвижимость»
УНП 193820882
Лицензия Министерства Юстиции №48250000081913 06.03.2025 г.
Договор № 249/2а от 19.03.2026.
Параметры объекта
- Тип объекта
Торговое помещение
- Площадь общая
1274.50 м²
- Этаж
2
- Год постройки
2010
- Класс
B
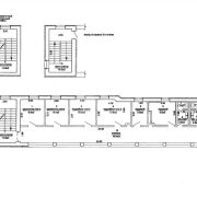
- Раздельных помещений
18
- Материал стен
Монолитный
- Высота потолков
3 м
- Ремонт
Хороший
- Отопление
Есть
- Электроснабжение
220В
- Естественное освещение
Есть
- Санузел
2 санузла
- Оборудование
Есть
- Парковка
Есть
- Принадлежность объекта
Частная
- НДС
НДС нет (0%)
- Расположение
В торговом центре
- Юридический адрес
Да
- Номер договора
249/2а от 18.03.2026
Оснащение
Кондиционер
Охрана
Сигнализация
Видеонаблюдение
Оживленное место
Интернет
Отдельный вход
Гарант Недвижимость
Контактное лицо
Примечание
Местоположение
- Область
- Населенный пункт
- Улица
- Номер дома
146
- Район города
- Микрорайон
- Координаты
53.8716, 27.5686
