Снять торговое помещение, г. Минск, ул. Чечота, 5
54 р./м²
- г. Минскул. Чечота, 5
- Малиновка
- На карте
Тип
Площадь
Этаж
Описание
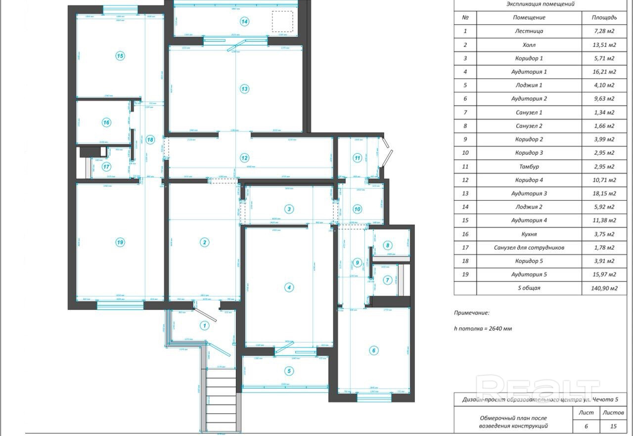
Сдается в аренду светлое помещение на ул. Яна Чечота 5
Площадь помещения 130 м2 - идеально подойдет под клуб, детский центр, офис, различного вида образовательные услуги, репетиторство.
В офисе выполнен свежий ремонт, установлена многоуровневая система безопасности, есть отдельный вход., он укомплектован новой мебелью, выполненной под заказ.
В помещении оборудована кухня, три сан. узла, приторно-вытяжная вентиляция.
Окна на две стороны, высокая степень инсоляции.
Высота потолков 2,65 м, мощность до 20 кВт.
Объект расположен в пешей доступности от ст. метро Малиновка, на проспекте Дзержинского, недалеко от помещения расположены остановки общественного транспорта, что позволяет добраться до него из любой точки Минска.
Возле здания есть несколько точек со свободной плоскостной парковкой.
Также в пешей доступности расположены магазины, торговые центры и точки общепита.
Помещение ранее в аренду не сдавалось.
Result Estate — ваш надёжный партнёр на рынке недвижимости.
20 лет опыта наших агентов по недвижимости — это ваш ключ к идеальной сделке: глубокое знание рынка, эксклюзивные предложения, юридическая безопасность и индивидуальный подход. Мы экономим ваше время, деньги и нервы, помогая купить, продать недвижимость быстро, выгодно и с уверенностью в результате!
Все актуальные предложения в одном месте — смотрите на нашем сайте.
Опишите свои пожелания — и мы оперативно подберем для вас лучшие варианты!
ООО «Результативная недвижимость», лицензия выдана Минюстом 26.09.2023 № 02240470, УНП 193703497
Связываясь с нами по данному объекту, Вы даете свое согласие на сбор и обработку персональных данных автоматически.
Параметры объекта
- Тип объекта
Торговое помещение
- Площадь общая
130 м²
- Этаж / этажность
1 / 10
- Ремонт
Хороший
- Отопление
Есть
- Электроснабжение
Есть
- Естественное освещение
Есть
- Вода
Есть
- Санузел
Есть
- Парковка
Есть
- Принадлежность объекта
Частная
- НДС
НДС включен
- Расположение
В жилом доме
- Номер договора
25/1а от 08.03.2026
Оснащение
Отдельный вход
Ирина Койкова
Агент по недвижимости
Примечание
Местоположение
- Область
- Населенный пункт
- Улица
- Номер дома
5
- Район города
- Микрорайон
- Координаты
53.8505, 27.4774
