Аренда помещения 102 м² с отдельным входом рядом с пл. Ванеева
33 р./м²
- г. Минскпросп. Партизанский, 45
- Тракторный завод
- На карте
Тип
Площадь
Этаж
Описание
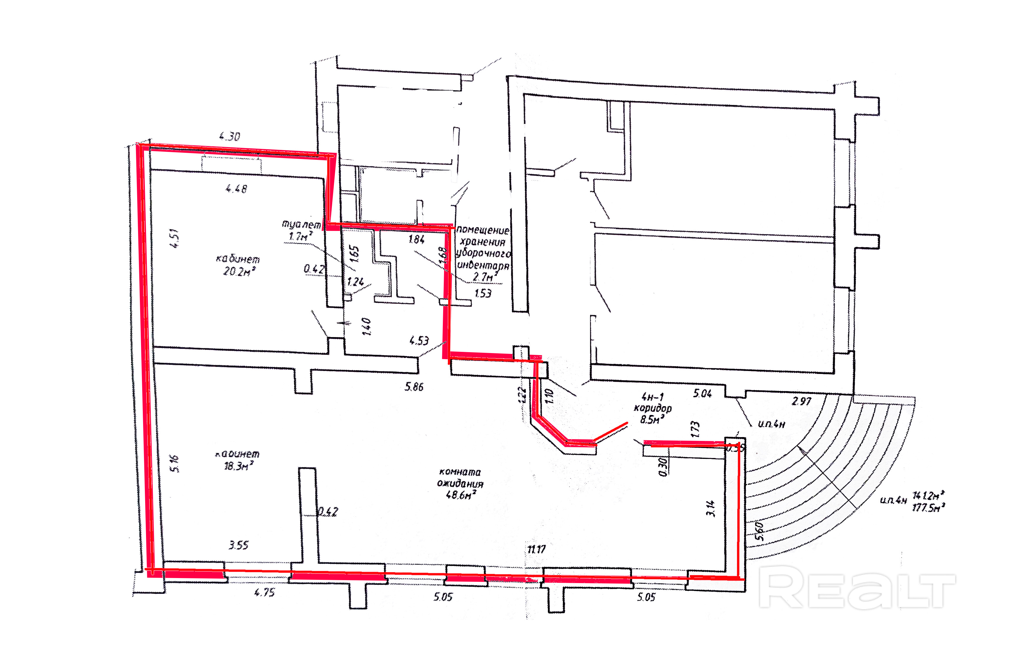
Аренда помещения площадью 102,1 м2 с отдельным входом по адресу: пр.Партизанский, 45. Включает основной зал 60 м2, кабинет 20,2 м2, помещение 2,7 м2 и собственный санузел.
Отделка помещения:
-пол: плитка ,линолеум
-потолок: армстронг
-стены: под покраску
-ремонт: офисный, требуется косметическое обновление
-высота: 3м
-окна: ПВХ-стеклопакеты,в кабинете установлена защитная роллета, 4 из 5 окон выходят на Партизанский проспект
-выделенная мощность: 8кВт
- отдельный вход с доступом 24/7
Инженерные системы и коммуникации:
-водоснабжение, отопление, канализация: центральные
-вентиляция с естественным побуждением
-собственный с/у
Парковка:
Организованная парковка вдоль дома и на прилегающих улицах
Местоположении и инфраструктура
- до пл. Ванеева-300м
Транспортный узел: Площадь Ванеева — одна из ключевых развязок, обеспечивающая высокий автомобильный и пешеходный трафик
- до МКАД-10 минут
- до ст.м.Партизанская и Тракторный завод -2-4 остановки или около 15мин.
- до железнодорожного и автовокзала -15минут
- недалеко находятся корпуса БГЭУ, Национальный футбольный стадион, детский Центр технического творчества
- в шаговой доступности работают супермаркеты, аптеки, отделения банков, почта и объекты общественного питания
- помещение окружено плотной жилой застройкой, что обеспечивает стабильную базу потенциальных клиентов для услуг формата «у дома».
Result Estate — ваш надёжный партнёр на рынке недвижимости.
20 лет опыта наших агентов по недвижимости — это ваш ключ к идеальной сделке: глубокое знание рынка, эксклюзивные предложения, юридическая безопасность и индивидуальный подход. Мы экономим ваше время, деньги и нервы, помогая купить, продать недвижимость быстро, выгодно и с уверенностью в результате!
Все актуальные предложения в одном месте — смотрите на нашем сайте.
Опишите свои пожелания — и мы оперативно подберем для вас лучшие варианты!
ООО «Результативная недвижимость», лицензия выдана Минюстом 26.09.2023 № 02240/470, УНП 193703497
Параметры объекта
- Тип объекта
Торговое помещение
- Площадь общая
102.10 м²
- Этаж / этажность
1 / 6
- Материал стен
Кирпичный
- Отопление
Есть
- Электроснабжение
Есть
- Естественное освещение
Есть
- Вода
Есть
- Санузел
Есть
- Принадлежность объекта
Частная
- НДС
НДС нет (0%)
- Номер договора
21/1а от 02.03.2026
Результативная недвижимость
Контактное лицо
Примечание
Местоположение
- Область
- Населенный пункт
- Улица
- Номер дома
45
- Район города
- Микрорайон
- Координаты
53.8799, 27.6062
