Торговое помещение на пр-т Дзержинского, 122
10 550 р.
92 р.≈ 33 $ за м²
Тип
Площадь
Этаж
Описание
В аренду предлагается просторное торговое помещение на первой линии оживленного проспекта Дзержинского. Расположение на пересечении двух транспортных артерий в плотном жилом массиве обеспечивает высокий пешеходный и автомобильный трафик.
Характеристики и преимущества объекта:
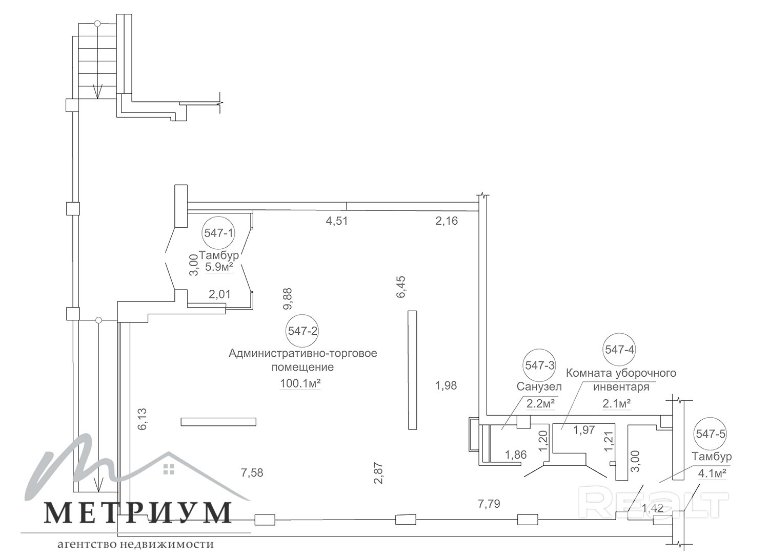
· Площадь: Общая площадь 114,4 кв. м, из которых 100,1 кв. м — светлый торговый зал с большими окнами. Также оборудованы подсобные помещения и санузел.
· Расположение: Жилой дом на пересечении проспекта Дзержинского и улицы Сергея Есенина. Помещение находится в линейке стрит-ритейла: магазин «Мила», «Семь Пятниц», отделение МТБанка, аптека и другие торговые объекты. Сложившаяся торговая инфраструктура обеспечивает стабильный поток покупателей.
· Транспортная доступность: Всего 75 метров до станции метро «Малиновка» и 100 метров до остановки общественного транспорта - гарантированный высокий пассажиропоток ежедневно.
· Состояние помещения: Выполнена качественная отделка: пол - плитка, стены подготовлены под окраску, потолок - Armstrong. Помещение полностью готово к началу работы.
Договор № 54/1а от 04.03.2026
ООО Агентство недвижимости «Метриум»
УНП 193581536
Лицензия № 02240/425, выдана Министерством Юстиции РБ 27.08.2021
Параметры объекта
- Тип объекта
Торговое помещение
- Площадь общая
114.40 м²
- Этаж / этажность
1 / 12
- Год постройки
2013
- Материал стен
Блочный
- Ремонт
Хороший
- Отопление
Есть
- Электроснабжение
Есть
- Естественное освещение
Есть
- Вода
Есть
- Санузел
Есть
- Принадлежность объекта
Частная
- НДС
НДС не включен
- Расположение
В жилом доме
- Юридический адрес
Да
- Номер договора
54/1а от 03.03.2026
Агентство недвижимости Метриум
Контактное лицо
Примечание
Местоположение
- Область
- Населенный пункт
- Улица
- Номер дома
122
- Район города
- Микрорайон
- Координаты
53.8503, 27.4733
