Помещение на Киселева, 17 С РЕМОНТОМ 115,2 кв.м.
8 118 р.
70 р.≈ 25 $ за м²
- г. Минскул. Киселева, 17
- Площадь Победы
- На карте
Тип
Площадь
Этаж
Описание
Предлагаем в аренду торговое помещение по адресу: ул. Киселева, 17.
Расположение:
Находится в новом густонаселенном районе на первой линии, на первом этаже современного жилого комплекса. 5 минут до станции метро «Площадь Победы». Это идеальное место для вашего бизнеса, обеспеченное высоким пешеходным и автомобильным трафиком.
Помещение имеет два входа, естественное освещение, пожарную сигнализацию, ИПУ воды, электроэнергии. Есть все необходимые коммуникации: электричество, отопление, вода, канализация. В шаговой доступности расположены такие якорные арендаторы, как Беларусбанк, Европочта, Медцентр «Горизонт», магазин соседи и т.д., что обеспечивает высокую проходимость и автомобильный трафик.
Локация данного помещения представлена множеством торговых объектов, помещениями сферы услуг, магазинов и т.д. До метро «Площадь Победы» 10 минут пешком. Остановка общественного транспорта в шаговой доступности. Удобная транспортная развязка к любой части города. Доступны парковочные места.
Помещение может использоваться для размещения магазина, сферы услуг, офиса, сервисного центра, студии красоты, интернет-магазина, свадебного салона.
-пожарная сигнализация;
-приточно-вытяжная вентиляция;
-остановка общественного транспорта в шаговой доступности;
-не высокие коммунальные платежи;
-высокая проходимость.
Арендатор не оплачивает услуги агентства.
Организуем показ в удобное для вас время.
Звоните!
Договор № 24/1а от 05.02.2026 года
ООО Агентство недвижимости «Метриум»
УНП 193581536
Лицензия № 02240/425, выдана Министерством Юстиции РБ 27.08.2021
Параметры объекта
- Тип объекта
Торговое помещение
- Площадь общая
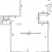
115.20 м²
- Этаж / этажность
1 / 8
- Год постройки
2016
- Класс
B
- Раздельных помещений
1
- Материал стен
Блочный
- Ремонт
Хороший
- Отопление
Есть
- Электроснабжение
Есть
- Естественное освещение
Есть
- Вода
Есть
- Санузел
Есть
- Принадлежность объекта
Частная
- НДС
НДС нет (0%)
- Расположение
В жилом доме
- Юридический адрес
Да
- Номер договора
24/1а от 04.02.2026
Агентство недвижимости Метриум
Контактное лицо
Примечание
Местоположение
- Область
- Населенный пункт
- Улица
- Номер дома
17
- Район города
- Координаты
53.9123, 27.5688
