Снять торговое помещение, г. Минск, ул. Интернациональная, 3
70 р./м²
Тип
Площадь
Этаж
Описание
Торговые павильоны на первом этаже в самом центре Минска на одной из самых популярных улиц города (улица Интернациональная)
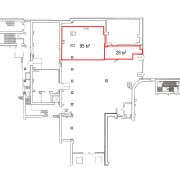
Доступные площади: 28 м2 и 95 м2
✅ Исторический центр: Ваш бизнес будет окружён туристами и жителями города
✅ Есть парковочные места в аренду
✅ Шаговая доступность к метро: Удобство для клиентов и сотрудников
✅ Оживлённое место: Высокая проходимость гарантирует поток посетителей
✅ Комфортные условия: вентиляция, санузлы, кухня
✅ Выход на открытую террасу: Дополнительное пространство для привлечения клиентов.
Result Estate — ваш надёжный партнёр на рынке недвижимости.
20 лет опыта наших агентов по недвижимости — это ваш ключ к идеальной сделке: глубокое знание рынка, эксклюзивные предложения, юридическая безопасность и индивидуальный подход. Мы экономим ваше время, деньги и нервы, помогая купить, продать недвижимость быстро, выгодно и с уверенностью в результате!
Все актуальные предложения в одном месте — смотрите на нашем сайте.
Опишите свои пожелания — и мы оперативно подберем для вас лучшие варианты!
ООО «Результативная недвижимость», лицензия выдана Минюстом 26.09.2023 № 02240470, УНП 193703497
Связываясь с нами по данному объекту, Вы даете свое согласие на сбор и обработку персональных данных автоматически.
Параметры объекта
- Тип объекта
Торговое помещение
- Площадь общая
28 - 95 м²
- Этаж
1
- Отопление
Есть
- Электроснабжение
Есть
- Естественное освещение
Есть
- Вода
Есть
- Санузел
Есть
- Принадлежность объекта
Частная
- НДС
НДС включен
- Номер договора
130/1 от 10.09.2024
Оснащение
Оживленное место
Ирина Койкова
Агент по недвижимости
Примечание
Местоположение
- Область
- Населенный пункт
- Номер дома
3
- Район города
- Координаты
53.9011, 27.552
