Снять торговое помещение, г. Минск, ул. Мястровская, 26
46 р./м²
Тип
Площадь
Этаж
Описание
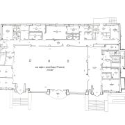
Аренда торгового помещения площадью 699,3 м2 по улице Мястровская 26.
Назначение - помещение общественного питания.
Помещение имеет большое пространство 313 м2 "зал кафе с зоной бара" с высоким потолком, витринные окна, обеспечивающие естественное освещение. Удобная планировка позволяет легко организовать зону для посетителей, кухню и подсобные помещения.
Есть все необходимые коммуникации, включая вентиляцию и кондиционирование. Отличное местоположение, рядом находятся транспортные остановки и парковочные зоны. Подходит как для кафе, так и для ресторана.
Арендатор не оплачивает услуги агентства.
Result Estate — ваш надёжный партнёр на рынке недвижимости.
20 лет опыта наших агентов по недвижимости — это ваш ключ к идеальной сделке: глубокое знание рынка, эксклюзивные предложения, юридическая безопасность и индивидуальный подход. Мы экономим ваше время, деньги и нервы, помогая купить, продать недвижимость быстро, выгодно и с уверенностью в результате!
Все актуальные предложения в одном месте — смотрите на нашем сайте.
Опишите свои пожелания — и мы оперативно подберем для вас лучшие варианты!
ООО «Результативная недвижимость», лицензия выдана Минюстом 26.09.2023 № 02240470, УНП 193703497
Связываясь с нами по данному объекту, Вы даете свое согласие на сбор и обработку персональных данных автоматически.
Параметры объекта
- Тип объекта
Торговое помещение
- Площадь общая
669.30 м²
- Этаж
1
- Ремонт
Хороший
- Отопление
Есть
- Электроснабжение
Есть
- Вода
Есть
- Санузел
Есть
- Принадлежность объекта
Частная
- НДС
НДС нет (0%)
- Номер договора
170/1а от 12.12.2024
Сергей Костюкевич
Агент по недвижимости
Примечание
Местоположение
- Область
- Населенный пункт
- Улица
- Номер дома
26
- Район города
- Микрорайон
- Координаты
53.9401, 27.4648
