Аренда помещений по адресу: Минск, Скорины, 9
45 р./м²
Аренда
Следить за ценой
Торговое помещение
Тип
22 м²
Площадь
1 из 1
Этаж
25.03.2026ID 3973304
Описание
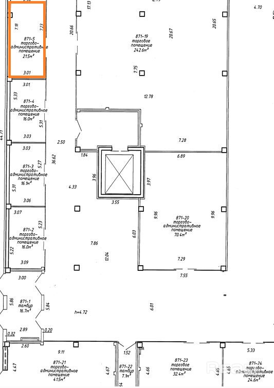
Сдам помещение на первом этаже в прикассовой зоне Торгового центра Маяк по ул.Скорины 9, площадью 22 м2 , есть возможность расширить до 50 метров объединив два помещения, возможность проведения воды, вытяжки, необходимого для работы точки общепита, услуг. Якорный арендатор 7 Пятниц, Фикс прайс, аптеки, цветы, шаурма, ПонПушка, Ремонт мобильных телефонов, прочее. Трафик клиентов с высоким средним чеком, сегмент выше среднего. Просторная парковка для покупателей, в 20 метрах от входа автобусная остановка. Звоните и приезжайте смотреть!
Параметры объекта
- Тип объекта
Торговое помещение
- Площадь общая
22 м²
- Этаж / этажность
1 / 1
- Ремонт
Хороший
- Отопление
Есть
- Электроснабжение
Есть
- Санузел
Есть
- Парковка
Есть
- Принадлежность объекта
Частная
- НДС
НДС не включен
- Расположение
В торговом центре
Оснащение
Оживленное место
Охрана
Видеонаблюдение
Примечание
Сдам помещение на первом этаже в прикассовой зоне площадью 22 м кв, возможность проведения воды, вытяжки, необходимого для работы точки общепита, услуг. Якорный арендатор 7 Пятниц, Фикс прайс, аптеки, цветы, шаурма, ПонПушка, Ремонт мобильных телефонов, прочее. Трафик клиентов с высоким средним чеком, сегмент выше среднего. Звоните и приезжайте смотреть!
Местоположение
- Область
- Населенный пункт
- Улица
- Номер дома
9
- Район города
- Микрорайон
- Координаты
53.927508729, 27.656970077
